Maison neuve à
Quincy-Voisins (77860) Référence : DC2444275_3

Prix du projet : Maison avec Terrain

prix 310 000 €

  • 5 pièces
  • 4 chambres
  • Surface maison 98 m2

VENTE : maison de 5 pièces (98 m²) à Quincy-Voisins
PROCHE D'AULNAY-SOUS-BOIS - MAISON 5 PIÈCES NEUVE
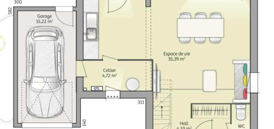
En vente : à côté de la gare d'Esbly (Paris à 30 min avec le Transilien P), nous sommes ravis de vous proposer cette maison de 5 pièces de 98 m² à Quincy-Voisins (77860). Son intérieur propose quatre chambres, une cuisine et une salle de bains.
Le terrain de la propriété s'étend sur 211 m².
Cette maison comporte 2 niveaux. Elle est neuve.
Des écoles maternelles et élémentaires sont implantées à moins de 10 minutes à pied. Niveau transports en commun, on trouve la ligne de RER A (Chessy-Marne-La-Vallée) ainsi que huit gares à moins de 10 minutes en voiture. Il y a un tennis, une bibliothèque, un commerce, une épicerie, un bureau de poste, une supérette et deux boucheries-charcuteries à quelques minutes à peine.
Son prix de vente est de 305 000 €.
Contactez notre agence (réf F.J : 01-64-14-43-30) pour toute question sur cette maison. Donnez vie à vos projets immobiliers avec Maisons France Confort Melun.

Annonce proposée par un Agent Commercial Partenaire.

Mentions légales

Terrain proposé par un partenaire foncier selon disponibilités et autorisation de publicité au prix de 70 800 €. Hors droit d'enregistrement et frais de notaire. Terrain + Maison proposés au prix de 310 000 € (Hors branchements et raccordements, papiers peints, peintures, revêtement de sol dans les chambres. Tarif modifiable sans préavis). Etiquette énergie : A. Différents modèles disponibles pour ce terrain. Assurances et garanties du constructeur (RC professionnelle, décennale, dommage ouvrage, garantie de remboursement de l'acompte, livraison à prix et délai convenu) : https://www.maisons-france-confort.fr/mentions-legales/. HEXAOM Services est enregistré auprès de l'ORIAS en tant que Courtier en financement, Niveau 1, sous le numéro 14001345.

Contactez l'agence de Melun

01 64 14 43 20

    * Champs obligatoires

    Vos informations sont traitées par HEXAOM et transmises à un conseiller commercial qui vous contactera afin de répondre à votre demande. Les plans et images présentés sur notre site sont la propriété d’HEXAOM et ne peuvent pas être reproduits sans son accord. Pour retrouver notre politique de protection des données personnelles et exercer vos droits conformément à la « loi informatique et liberté » cliquez-ici.