Maison neuve à
Quincy-Voisins
(77860) Référence :
CY2432829_1
Prix du projet : Maison avec Terrain
prix 300 000 €
- 5 pièces
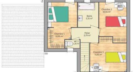
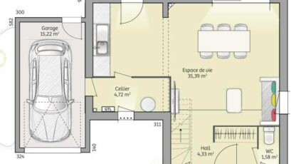
- 3 chambres
- Surface maison 90 m2
VENTE d'une maison de 5 pièces (90 m²) à Quincy-Voisins
MAISON 5 PIÈCES NEUVE - PROCHE D'AULNAY-SOUS-BOIS
En vente : à côté du Transilien P (gare d'Esbly, 30 min de Paris), nous sommes ravis de vous présenter à Quincy-Voisins (77860), cette maison de 5 pièces de 90 m² et de 186 m² de terrain. Elle est composée de trois chambres, d'une cuisine et d'une salle de bains.
Cette maison comporte 2 niveaux. Elle est neuve.
Des écoles maternelles et élémentaires sont implantées à moins de 10 minutes à pied. Niveau transports, on trouve la ligne de RER A (Chessy-Marne-La-Vallée) ainsi que huit gares à moins de 10 minutes en voiture. Il y a un tennis, une bibliothèque, une boulangerie, trois commerces, une boucherie-charcuterie, une épicerie et une supérette dans les environs.
Son prix de vente est de 300 000 €.
Contactez notre agence (Cedric YAHIAOUI : 06-66-57-00-63) pour obtenir de plus amples renseignements sur cette maison, sur les modalités de vente ou sur les démarches à suivre.
Annonce proposée par un Agent Commercial Partenaire.
Mentions légales
Terrain proposé par un partenaire foncier selon disponibilités et autorisation de publicité au prix de 140 000 €. Hors droit d'enregistrement et frais de notaire. Terrain + Maison proposés au prix de 300 000 € (Hors branchements et raccordements, papiers peints, peintures, revêtement de sol dans les chambres. Tarif modifiable sans préavis). Etiquette énergie : A. Différents modèles disponibles pour ce terrain. Assurances et garanties du constructeur (RC professionnelle, décennale, dommage ouvrage, garantie de remboursement de l'acompte, livraison à prix et délai convenu) : https://www.maisons-france-confort.fr/mentions-legales/. HEXAOM Services est enregistré auprès de l'ORIAS en tant que Courtier en financement, Niveau 1, sous le numéro 14001345.Agence Maisons France Confort de Magny-le-Hongre (77700)
- Téléphone :
- 01 84 80 92 96
- Adressse :
- 11 rue de Courtalin
77700 Magny-le-Hongre, France
