Maison neuve à
Quincy-Voisins (77860) Référence : FS2455822_1

Prix du projet : Maison avec Terrain

prix 297 000 €

  • 5 pièces
  • 3 chambres
  • Surface maison 90 m2

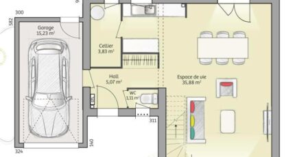
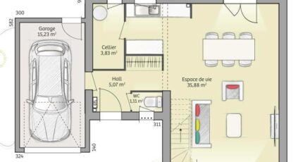
Maison de 5 pièces (90 m²) en vente à Quincy-Voisins
IDÉALEMENT SITUÉE - MAISON 5 PIÈCES NEUVE
Proche du Transilien P (gare d'Esbly, 30 min de Paris), à vendre idéalement située dans Quincy-Voisins (77860), notre agence Maisons France Confort Magny-le-Hongre est ravie de vous présenter cette maison de 5 pièces de 90 m² et de 363 m² de terrain. Elle offre trois chambres, une cuisine et une salle de bains.
C'est une maison de 2 niveaux. Elle est neuve.
Cette maison est située dans un secteur recherché. Des écoles maternelles et élémentaires se trouvent à moins de 10 minutes à pied. Côté transports, il y a la ligne de RER A (Chessy-Marne-La-Vallée) ainsi que huit gares à moins de 10 minutes en voiture. Il y a un tennis, une bibliothèque, un commerce, une supérette, un bureau de poste, deux boucheries-charcuteries et une épicerie à proximité de la maison.
Son prix de vente est de 297 000 €.
Contactez notre agence (Félix SOUMARMON : 06-10-24-97-84) pour obtenir de plus amples informations sur la maison, sur les modalités de vente ou sur les démarches à suivre.

Annonce proposée par un Agent Commercial Partenaire.

Mentions légales

Terrain proposé par un partenaire foncier selon disponibilités et autorisation de publicité au prix de 125 000 €. Hors droit d'enregistrement et frais de notaire. Terrain + Maison proposés au prix de 297 000 € (Hors branchements et raccordements, papiers peints, peintures, revêtement de sol dans les chambres. Tarif modifiable sans préavis). Etiquette énergie : A. Différents modèles disponibles pour ce terrain. Assurances et garanties du constructeur (RC professionnelle, décennale, dommage ouvrage, garantie de remboursement de l'acompte, livraison à prix et délai convenu) : https://www.maisons-france-confort.fr/mentions-legales/. HEXAOM Services est enregistré auprès de l'ORIAS en tant que Courtier en financement, Niveau 1, sous le numéro 14001345.

Contactez l'agence de Magny-le-Hongre

01 84 80 92 96

    * Champs obligatoires

    Vos informations sont traitées par HEXAOM et transmises à un conseiller commercial qui vous contactera afin de répondre à votre demande. Les plans et images présentés sur notre site sont la propriété d’HEXAOM et ne peuvent pas être reproduits sans son accord. Pour retrouver notre politique de protection des données personnelles et exercer vos droits conformément à la « loi informatique et liberté » cliquez-ici.