Maison neuve à
Saint-Avertin
(37550) Référence :
SD2479390_1
Prix du projet : Maison avec Terrain
prix 570 000 €
- 4 pièces
- 4 chambres
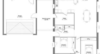
- Surface maison 150 m2
Cette belle maison à construire de 150m² offre une grande pièce de vie lumineuse de plus de 74m² avec une triple exposition. Elle comprend quatre belles chambres spacieuses, idéales pour une famille. Un grand garage de 38m² permet de stationner facilement un véhicule et de bénéficier d'un espace de rangement supplémentaire. Enfin, un vaste porche couvert peut accueillir une voiture, offrant une protection supplémentaire contre les intempéries.
Je reste disponible pour toutes demandes de renseignements, n'hésitez pas me contacter : Stéphane Digneton : O6.64.92.89.69.
Mentions légales
Terrain proposé par un partenaire foncier selon disponibilités et autorisation de publicité au prix de 235 000 €. Hors droit d'enregistrement et frais de notaire. Terrain + Maison proposés au prix de 570 000 € (Hors branchements et raccordements, papiers peints, peintures, revêtement de sol dans les chambres. Tarif modifiable sans préavis). Etiquette énergie : A. Différents modèles disponibles pour ce terrain. Assurances et garanties du constructeur (RC professionnelle, décennale, dommage ouvrage, garantie de remboursement de l'acompte, livraison à prix et délai convenu) : https://www.constructions-ideale-demeure.fr/mentions-legales/.Agence Constructions Idéale Demeure de Saint-Cyr-sur-Loire (37540)
- Téléphone :
- 02 47 55 88 12
- Adressse :
- 2 rue Thérèse et René Planiol
37540 Saint-Cyr-sur-Loire, France