Maison neuve à
Saint-Fargeau-Ponthierry (77310) Référence : DC2489058_1

Prix du projet : Maison avec Terrain

prix 381 605 €

  • 5 pièces
  • 3 chambres
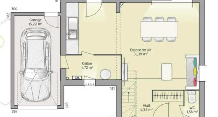
  • Surface maison 90 m2

Maison F5 (90 m²) à vendre à Saint-Fargeau-Ponthierry
PROCHE DE CRÉTEIL - MAISON 5 PIÈCES NEUVE
En vente : proche du RER D (station Cesson, 30 min de Paris), Maisons France Confort Melun vous présente cette maison de 5 pièces de 90 m² à Saint-Fargeau-Ponthierry (77310). Son intérieur propose trois chambres, une cuisine et une salle de bains.
Le terrain du bien est de 1 062 m².
C'est une maison de 2 niveaux. Elle est neuve.
Il y a l'École Maternelle les Grands Cèdres, l'École Élémentaire les Grands Cèdres et l'École Maternelle les Bordes à moins de 10 minutes à pied. Niveau transports, on trouve la ligne de RER D (Ponthierry-Pringy) ainsi que 15 gares à moins de 10 minutes en voiture. Il y a une bibliothèque, six commerces, trois épiceries et une boucherie-charcuterie dans les environs.
Son prix de vente est de 381 605 €.
Contactez David CORDIER (06-10-79-38-15) pour tout renseignement sur cette maison ou sur les modalités de vente. Faites de vos projets immobiliers une réalité avec Maisons France Confort Melun.

Annonce proposée par un Agent Commercial Partenaire.

Mentions légales

Terrain proposé par un partenaire foncier selon disponibilités et autorisation de publicité au prix de 169 000 €. Hors droit d'enregistrement et frais de notaire. Terrain + Maison proposés au prix de 381 605 € (Hors branchements et raccordements, papiers peints, peintures, revêtement de sol dans les chambres. Tarif modifiable sans préavis). Etiquette énergie : A. Différents modèles disponibles pour ce terrain. Assurances et garanties du constructeur (RC professionnelle, décennale, dommage ouvrage, garantie de remboursement de l'acompte, livraison à prix et délai convenu) : https://www.maisons-france-confort.fr/mentions-legales/. HEXAOM Services est enregistré auprès de l'ORIAS en tant que Courtier en financement, Niveau 1, sous le numéro 14001345.

Contactez l'agence de Melun

01 64 14 43 20

    * Champs obligatoires

    Vos informations sont traitées par HEXAOM et transmises à un conseiller commercial qui vous contactera afin de répondre à votre demande. Les plans et images présentés sur notre site sont la propriété d’HEXAOM et ne peuvent pas être reproduits sans son accord. Pour retrouver notre politique de protection des données personnelles et exercer vos droits conformément à la « loi informatique et liberté » cliquez-ici.