Maison neuve à
Saint-Gabriel-Brécy (14480) Référence : JS2485612_1

Prix du projet : Maison avec Terrain

prix 234 900 €

  • 7 pièces
  • 5 chambres
  • Surface maison 102 m2

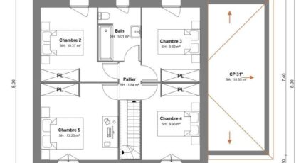
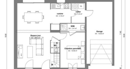
VENTE d'une maison F7 (102 m²) à Saint-Gabriel-Brécy
IDÉALEMENT SITUÉE - MAISON 7 PIÈCES NEUVE
À quelques kilomètres de Caen, notre agence Maisons France Confort Bayeux est ravie de vous proposer cette maison de 7 pièces de 102 m² idéalement située dans Saint-Gabriel-Brécy (14480).
Cette maison compte 2 niveaux. Elle propose cinq chambres, une cuisine et deux salles de bains. Cette maison est neuve.
Le terrain de la propriété est de 400 m².
La maison se situe dans un quartier prisé. Des établissements scolaires du primaire et du secondaire sont implantés à moins de 10 minutes en voiture, tout comme une crèche à moins de 10 minutes à pied. Niveau transports en commun, on trouve les gares Audrieu, Bretteville-Norrey et Bayeux à moins de 10 minutes en voiture. Il y a un accès à la nationale N13 à 4 km. Il y a des tennis, des bibliothèques, un bowling, des commerces, des boucheries-charcuteries, trois supérettes, trois poissonneries et quatre bureaux de poste dans les environs. Ne manquez pas le marché Rue Saint Jean chaque mercredi matin.
Son prix de vente est de 234 900 €.
Prenez contact avec Emilie HUE (06-29-81-46-66) pour tout renseignement sur la propriété.

Annonce proposée par un Agent Commercial Partenaire.

Mentions légales

Terrain proposé par un partenaire foncier selon disponibilités et autorisation de publicité au prix de 64 900 €. Hors droit d'enregistrement et frais de notaire. Terrain + Maison proposés au prix de 234 900 € (Hors branchements et raccordements, papiers peints, peintures, revêtement de sol dans les chambres. Tarif modifiable sans préavis). Etiquette énergie : A. Différents modèles disponibles pour ce terrain. Assurances et garanties du constructeur (RC professionnelle, décennale, dommage ouvrage, garantie de remboursement de l'acompte, livraison à prix et délai convenu) : https://www.maisons-france-confort.fr/mentions-legales/. HEXAOM Services est enregistré auprès de l'ORIAS en tant que Courtier en financement, Niveau 1, sous le numéro 14001345.

Contactez l'agence de Bayeux

02 31 51 20 91

    * Champs obligatoires

    Vos informations sont traitées par HEXAOM et transmises à un conseiller commercial qui vous contactera afin de répondre à votre demande. Les plans et images présentés sur notre site sont la propriété d’HEXAOM et ne peuvent pas être reproduits sans son accord. Pour retrouver notre politique de protection des données personnelles et exercer vos droits conformément à la « loi informatique et liberté » cliquez-ici.