Maison neuve à
Creully (14480) Référence : JS2484763_2

Prix du projet : Maison avec Terrain

prix 249 000 €

  • 7 pièces
  • 5 chambres
  • Surface maison 102 m2

Maison de 7 pièces (102 m²) en vente à Creully
IDÉALEMENT SITUÉE - MAISON 7 PIÈCES NEUVE
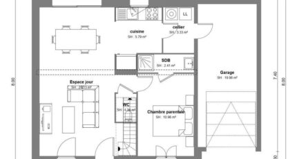
En vente : à 17 km de Caen, nous sommes heureux de vous proposer cette maison de 7 pièces de 102 m² et de 485 m² de terrain idéalement située dans Creully (14480). Elle inclut cinq chambres, une cuisine et deux salles de bains.
C'est une maison de 2 niveaux. Elle est neuve.
Cette maison est située dans un secteur recherché. Il y a tous les types d'établissements scolaires (maternelle, élémentaire et secondaire) à moins de 10 minutes à pied et, comme l'Institut Agricole Privé Lemonnier-Site de Saint Gabriel Brécy ou le Collège Jean de la Varende. Niveau transports en commun, on trouve les gares Audrieu et Bretteville-Norrey à moins de 10 minutes en voiture. On trouve un accès à la nationale N13 à 7 km. Il y a une bibliothèque, trois commerces, une épicerie et un bureau de poste dans les environs.
Son prix de vente est de 249 000 €.
N'hésitez pas à prendre contact avec Emilie HUE (tél : 06-29-81-46-66) pour plus d'informations sur le bien, sur les démarches à suivre ou sur les modalités de vente.

Annonce proposée par un Agent Commercial Partenaire.

Mentions légales

Terrain proposé par un partenaire foncier selon disponibilités et autorisation de publicité au prix de 79 000 €. Hors droit d'enregistrement et frais de notaire. Terrain + Maison proposés au prix de 249 000 € (Hors branchements et raccordements, papiers peints, peintures, revêtement de sol dans les chambres. Tarif modifiable sans préavis). Etiquette énergie : A. Différents modèles disponibles pour ce terrain. Assurances et garanties du constructeur (RC professionnelle, décennale, dommage ouvrage, garantie de remboursement de l'acompte, livraison à prix et délai convenu) : https://www.maisons-france-confort.fr/mentions-legales/. HEXAOM Services est enregistré auprès de l'ORIAS en tant que Courtier en financement, Niveau 1, sous le numéro 14001345.

Contactez l'agence de Bayeux

02 31 51 20 91

    * Champs obligatoires

    Vos informations sont traitées par HEXAOM et transmises à un conseiller commercial qui vous contactera afin de répondre à votre demande. Les plans et images présentés sur notre site sont la propriété d’HEXAOM et ne peuvent pas être reproduits sans son accord. Pour retrouver notre politique de protection des données personnelles et exercer vos droits conformément à la « loi informatique et liberté » cliquez-ici.