Maison neuve à
Saint-Just-en-Chaussée (60130) Référence : FBstjustenchaussee55_6

Prix du projet : Maison avec Terrain

prix 244 000 €

  • 5 pièces
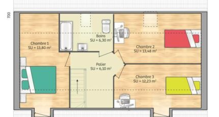
  • 3 chambres
  • Surface maison 80 m2

Maison F5 (80 m²) à vendre à Saint-Just-en-Chaussée
CENTRE-VILLE - MAISON 5 PIÈCES NEUVE
En vente : à deux pas de Beauvais, découvrez cette maison de 5 pièces de 80 m² à Saint-Just-en-Chaussée (60130), en centre-ville. Son intérieur dispose de trois chambres, d'une cuisine et d'une salle de bains.
Le terrain du bien est de 735 m².
Il s'agit d'une maison de 2 niveaux. Elle est neuve.
Il y a plusieurs établissements scolaires (maternelle, élémentaire et collège) à moins de 10 minutes à pied, tout comme une crèche. Côté transports en commun, on trouve la gare Saint-Just-en-Chaussée à proximité. Il y a un tennis, des commerces, trois boulangeries, un supermarché, une supérette et un bureau de poste à quelques minutes.
Elle est à vendre pour la somme de 244 000 €.
Prenez contact avec Fabrice BONELLO (tél : 06-09-50-50-09) pour tout renseignement sur la maison et sur les modalités de vente. Maisons France Confort Beauvais est là pour vous accompagner dans toutes vos démarches.

Mentions légales

Terrain proposé par un partenaire foncier selon disponibilités et autorisation de publicité au prix de 56 000 €. Hors droit d'enregistrement et frais de notaire. Terrain + Maison proposés au prix de 244 000 € (Hors branchements et raccordements, papiers peints, peintures, revêtement de sol dans les chambres. Tarif modifiable sans préavis). Etiquette énergie : A. Différents modèles disponibles pour ce terrain. Assurances et garanties du constructeur (RC professionnelle, décennale, dommage ouvrage, garantie de remboursement de l'acompte, livraison à prix et délai convenu) : https://www.maisons-france-confort.fr/mentions-legales/. HEXAOM Services est enregistré auprès de l'ORIAS en tant que Courtier en financement, Niveau 1, sous le numéro 14001345.

Contactez l'agence de Beauvais

03 44 04 40 04

    * Champs obligatoires

    Vos informations sont traitées par HEXAOM et transmises à un conseiller commercial qui vous contactera afin de répondre à votre demande. Les plans et images présentés sur notre site sont la propriété d’HEXAOM et ne peuvent pas être reproduits sans son accord. Pour retrouver notre politique de protection des données personnelles et exercer vos droits conformément à la « loi informatique et liberté » cliquez-ici.