Maison neuve à
Saint-Martin-Longueau (60700) Référence : CY2467631_1

Prix du projet : Maison avec Terrain

prix 302 000 €

  • 5 pièces
  • 3 chambres
  • Surface maison 80 m2

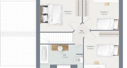
VENTE : maison F5 (80 m²) à Saint-Martin-Longueau
IDÉALEMENT SITUÉE - MAISON 5 PIÈCES NEUVE
À 19 km de Compiègne, notre agence Maisons France Confort Mareuil-lès-Meaux est ravie de vous présenter en vente, idéalement située dans Saint-Martin-Longueau (60700), cette maison de 5 pièces de 80 m² et de 540 m² de terrain.
Cette maison compte 2 niveaux. Elle est composée de trois chambres, d'une cuisine et d'une salle de bains. Cette maison est neuve.
Cette maison se situe dans un secteur attractif. Il y a l'École Primaire Robert Personne à moins de 10 minutes à pied. Niveau transports, on trouve quatre gares à moins de 10 minutes en voiture. L'autoroute A1 et la nationale N31 sont accessibles à moins de 7 km. Il y a un tennis, une bibliothèque, trois commerces et deux épiceries dans les environs.
Elle est proposée à l'achat pour 302 000 €.
Contactez Cedric YAHIAOUI (tél : 06-66-57-00-63) pour plus de renseignements sur la maison ou sur les démarches à suivre.

Annonce proposée par un Agent Commercial Partenaire.

Mentions légales

Terrain proposé par un partenaire foncier selon disponibilités et autorisation de publicité au prix de 112 000 €. Hors droit d'enregistrement et frais de notaire. Terrain + Maison proposés au prix de 302 000 € (Hors branchements et raccordements, papiers peints, peintures, revêtement de sol dans les chambres. Tarif modifiable sans préavis). Etiquette énergie : A. Différents modèles disponibles pour ce terrain. Assurances et garanties du constructeur (RC professionnelle, décennale, dommage ouvrage, garantie de remboursement de l'acompte, livraison à prix et délai convenu) : https://www.maisons-france-confort.fr/mentions-legales/. HEXAOM Services est enregistré auprès de l'ORIAS en tant que Courtier en financement, Niveau 1, sous le numéro 14001345.

Contactez l'agence de Mareuil-lès-Meaux

01 60 09 28 30

    * Champs obligatoires

    Vos informations sont traitées par HEXAOM et transmises à un conseiller commercial qui vous contactera afin de répondre à votre demande. Les plans et images présentés sur notre site sont la propriété d’HEXAOM et ne peuvent pas être reproduits sans son accord. Pour retrouver notre politique de protection des données personnelles et exercer vos droits conformément à la « loi informatique et liberté » cliquez-ici.