Maison neuve à
Saint-Mesmes (77410) Référence : CY2410828_1

Prix du projet : Maison avec Terrain

prix 309 000 €

  • 5 pièces
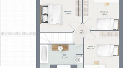
  • 3 chambres
  • Surface maison 80 m2

VENTE : maison de 5 pièces (80 m²) à Saint-Mesmes
IDÉALEMENT SITUÉE - MAISON 5 PIÈCES NEUVE
En vente : à deux pas de la gare de Compans (Paris à 25 min avec le Transilien K), laissez vous charmer par cette maison de 5 pièces de 80 m² et de 383 m² de terrain idéalement située dans Saint-Mesmes (77410). Son intérieur dispose de trois chambres, d'une cuisine et d'une salle de bains.
C'est une maison de 2 niveaux. Elle est neuve.
Cette maison est située dans un quartier convoité. L'École Primaire Léonard de Vinci se trouve à moins de 10 minutes à pied. Côté transports, il y a la ligne de RER B (Mitry-Claye) ainsi que sept gares à moins de 10 minutes en voiture. On trouve deux tennis à quelques minutes du logement.
Son prix de vente est de 309 000 €.
N'hésitez pas à prendre contact avec notre agence (YAHIAOUI Cedric : 06-66-57-00-63) pour plus de renseignements sur la maison ou sur les démarches à suivre. Maisons France Confort Mareuil-lès-Meaux est là pour vous accompagner dans tous vos projets immobiliers.

Annonce proposée par un Agent Commercial Partenaire.

Mentions légales

Terrain proposé par un partenaire foncier selon disponibilités et autorisation de publicité au prix de 165 000 €. Hors droit d'enregistrement et frais de notaire. Terrain + Maison proposés au prix de 309 000 € (Hors branchements et raccordements, papiers peints, peintures, revêtement de sol dans les chambres. Tarif modifiable sans préavis). Etiquette énergie : A. Différents modèles disponibles pour ce terrain. Assurances et garanties du constructeur (RC professionnelle, décennale, dommage ouvrage, garantie de remboursement de l'acompte, livraison à prix et délai convenu) : https://www.maisons-france-confort.fr/mentions-legales/. HEXAOM Services est enregistré auprès de l'ORIAS en tant que Courtier en financement, Niveau 1, sous le numéro 14001345.

Contactez l'agence de Mareuil-lès-Meaux

01 60 09 28 30

    * Champs obligatoires

    Vos informations sont traitées par HEXAOM et transmises à un conseiller commercial qui vous contactera afin de répondre à votre demande. Les plans et images présentés sur notre site sont la propriété d’HEXAOM et ne peuvent pas être reproduits sans son accord. Pour retrouver notre politique de protection des données personnelles et exercer vos droits conformément à la « loi informatique et liberté » cliquez-ici.