Maison neuve à
Saint-Mesmes (77410) Référence : CY2410842_2

Prix du projet : Maison avec Terrain

prix 327 000 €

  • 5 pièces
  • 3 chambres
  • Surface maison 90 m2

Maison de 5 pièces (90 m²) en vente à Saint-Mesmes
IDÉALEMENT SITUÉE - MAISON 5 PIÈCES NEUVE
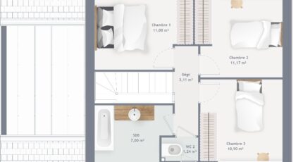
À proximité de la gare de Compans (Paris à 25 min par le Transilien K), en vente idéalement située dans Saint-Mesmes (77410), nous sommes heureux de vous proposer cette maison de 5 pièces de 90 m² et de 381 m² de terrain. Son intérieur offre trois chambres, une cuisine et une salle de bains.
C'est une maison de 2 niveaux. Elle est neuve.
Cette maison est située dans un secteur recherché. L'École Primaire Léonard de Vinci est implantée à moins de 10 minutes à pied. Niveau transports en commun, il y a la ligne de RER B (Mitry-Claye) ainsi que sept gares à moins de 10 minutes en voiture. On trouve deux tennis à quelques minutes de la maison.
Elle est à vendre pour la somme de 327 000 €.
Prenez contact avec notre agence (Cedric YAHIAOUI : 06-66-57-00-63) pour obtenir de plus amples renseignements sur la maison, sur les démarches à suivre ou sur les modalités de vente. Concrétisez vos projets immobiliers avec Maisons France Confort Mareuil-lès-Meaux.

Annonce proposée par un Agent Commercial Partenaire.

Mentions légales

Terrain proposé par un partenaire foncier selon disponibilités et autorisation de publicité au prix de 165 000 €. Hors droit d'enregistrement et frais de notaire. Terrain + Maison proposés au prix de 327 000 € (Hors branchements et raccordements, papiers peints, peintures, revêtement de sol dans les chambres. Tarif modifiable sans préavis). Etiquette énergie : A. Différents modèles disponibles pour ce terrain. Assurances et garanties du constructeur (RC professionnelle, décennale, dommage ouvrage, garantie de remboursement de l'acompte, livraison à prix et délai convenu) : https://www.maisons-france-confort.fr/mentions-legales/. HEXAOM Services est enregistré auprès de l'ORIAS en tant que Courtier en financement, Niveau 1, sous le numéro 14001345.

Contactez l'agence de Mareuil-lès-Meaux

01 60 09 28 30

    * Champs obligatoires

    Vos informations sont traitées par HEXAOM et transmises à un conseiller commercial qui vous contactera afin de répondre à votre demande. Les plans et images présentés sur notre site sont la propriété d’HEXAOM et ne peuvent pas être reproduits sans son accord. Pour retrouver notre politique de protection des données personnelles et exercer vos droits conformément à la « loi informatique et liberté » cliquez-ici.