Maison neuve à
Saint-Mesmes (77410) Référence : TM2428444_12

Prix du projet : Maison avec Terrain

prix 420 000 €

  • 6 pièces
  • 5 chambres
  • Surface maison 140 m2

Saint-Mesmes : maison T6 (140 m²) en vente
MAISON 6 PIÈCES NEUVE - PROCHE DE PARIS
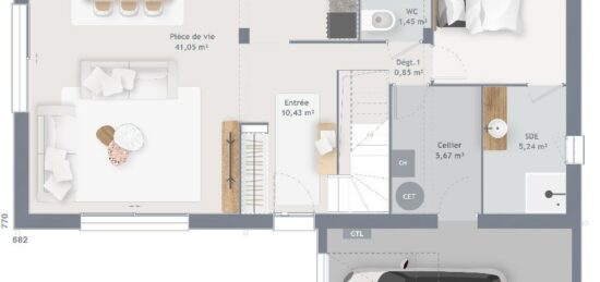
À vendre : au pied du Transilien K (gare de Compans, 25 min de Paris), nous sommes ravis de vous présenter à Saint-Mesmes (77410), cette maison de 6 pièces de plain-pied de 140 m² et de 350 m² de terrain. Conçue de plain-pied, elle compte cinq chambres, une cuisine et deux salles de bains.
Cette maison est neuve.
L'École Primaire Léonard de Vinci est implantée à moins de 10 minutes à pied. Niveau transports en commun, on trouve la ligne de RER B (Mitry-Claye) ainsi que sept gares à moins de 10 minutes en voiture. Il y a deux tennis à proximité du logement.
Son prix de vente est de 420 000 €.
N'hésitez pas à prendre contact avec Teddy MELES (06-17-56-83-36) pour obtenir de plus amples informations sur cette maison ou sur les démarches à suivre.

Annonce proposée par un Agent Commercial Partenaire.

Mentions légales

Terrain proposé par un partenaire foncier selon disponibilités et autorisation de publicité au prix de 180 000 €. Hors droit d'enregistrement et frais de notaire. Terrain + Maison proposés au prix de 420 000 € (Hors branchements et raccordements, papiers peints, peintures, revêtement de sol dans les chambres. Tarif modifiable sans préavis). Etiquette énergie : A. Différents modèles disponibles pour ce terrain. Assurances et garanties du constructeur (RC professionnelle, décennale, dommage ouvrage, garantie de remboursement de l'acompte, livraison à prix et délai convenu) : https://www.maisons-france-confort.fr/mentions-legales/. HEXAOM Services est enregistré auprès de l'ORIAS en tant que Courtier en financement, Niveau 1, sous le numéro 14001345.

Contactez l'agence de Magny-le-Hongre

01 84 80 92 96

    * Champs obligatoires

    Vos informations sont traitées par HEXAOM et transmises à un conseiller commercial qui vous contactera afin de répondre à votre demande. Les plans et images présentés sur notre site sont la propriété d’HEXAOM et ne peuvent pas être reproduits sans son accord. Pour retrouver notre politique de protection des données personnelles et exercer vos droits conformément à la « loi informatique et liberté » cliquez-ici.