Maison neuve à
Saint-Mesmes
(77410) Référence :
TM2428444_3
Prix du projet : Maison avec Terrain
prix 450 000 €
- 6 pièces
- 5 chambres
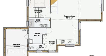
- Surface maison 114 m2
VENTE d'une maison de 6 pièces (114 m²) à Saint-Mesmes
MAISON 6 PIÈCES NEUVE - PROCHE DE PARIS
En vente : à deux pas de la gare de Compans (Paris à 25 min par le Transilien K), à Saint-Mesmes (77410), notre agence Maisons France Confort Magny-le-Hongre est heureuse de vous proposer cette maison de 6 pièces de 114 m². Elle se divise en cinq chambres, une cuisine et deux salles de bains.
Le terrain de cette maison est de 350 m².
Cette maison comporte 2 niveaux. Elle est neuve.
Il y a l'École Primaire Léonard de Vinci à moins de 10 minutes à pied. Côté transports en commun, on trouve la ligne de RER B (Mitry-Claye) ainsi que sept gares à moins de 10 minutes en voiture. Il y a deux tennis dans les environs.
Son prix de vente est de 450 000 €.
Prenez contact avec Teddy MELES (tél : 06-17-56-83-36) pour obtenir de plus amples renseignements sur la maison, sur les démarches à suivre ou sur les modalités de vente.
Annonce proposée par un Agent Commercial Partenaire.
Mentions légales
Terrain proposé par un partenaire foncier selon disponibilités et autorisation de publicité au prix de 180 000 €. Hors droit d'enregistrement et frais de notaire. Terrain + Maison proposés au prix de 450 000 € (Hors branchements et raccordements, papiers peints, peintures, revêtement de sol dans les chambres. Tarif modifiable sans préavis). Etiquette énergie : A. Différents modèles disponibles pour ce terrain. Assurances et garanties du constructeur (RC professionnelle, décennale, dommage ouvrage, garantie de remboursement de l'acompte, livraison à prix et délai convenu) : https://www.maisons-france-confort.fr/mentions-legales/. HEXAOM Services est enregistré auprès de l'ORIAS en tant que Courtier en financement, Niveau 1, sous le numéro 14001345.Agence Maisons France Confort de Magny-le-Hongre (77700)
- Téléphone :
- 01 84 80 92 96
- Adressse :
- 11 rue de Courtalin
77700 Magny-le-Hongre, France
