Maison neuve à
Saint-Mesmes
(77410) Référence :
CY2433562_1
Prix du projet : Maison avec Terrain
prix 337 000 €
- 5 pièces
- 3 chambres
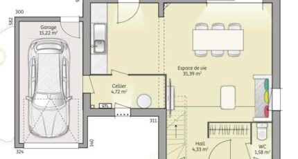
- Surface maison 90 m2
Saint-Mesmes : maison T5 (90 m²) à vendre
PROCHE DE PARIS - MAISON 5 PIÈCES NEUVE
En vente : au pied de la gare de Compans (Paris à 25 min par le Transilien K), nous sommes ravis de vous proposer à Saint-Mesmes (77410), cette maison de 5 pièces de 90 m² et de 895 m² de terrain.
Cette maison comporte 2 niveaux. Son intérieur compte trois chambres, une cuisine et une salle de bains. Cette maison est neuve.
Il y a l'École Primaire Léonard de Vinci à moins de 10 minutes à pied. Niveau transports, on trouve la ligne de RER B (Mitry-Claye) ainsi que sept gares à moins de 10 minutes en voiture. On trouve deux tennis à quelques minutes.
Elle est proposée à l'achat pour 337 000 €.
N'hésitez pas à prendre contact avec notre agence (Cedric YAHIAOUI : 06-66-57-00-63) pour plus d'informations sur la maison, sur les modalités de vente ou sur les démarches à suivre. Maisons France Confort Magny-le-Hongre vous accompagne dans tous vos projets immobiliers et dans toutes vos démarches.
Annonce proposée par un Agent Commercial Partenaire.
Mentions légales
Terrain proposé par un partenaire foncier selon disponibilités et autorisation de publicité au prix de 177 000 €. Hors droit d'enregistrement et frais de notaire. Terrain + Maison proposés au prix de 337 000 € (Hors branchements et raccordements, papiers peints, peintures, revêtement de sol dans les chambres. Tarif modifiable sans préavis). Etiquette énergie : A. Différents modèles disponibles pour ce terrain. Assurances et garanties du constructeur (RC professionnelle, décennale, dommage ouvrage, garantie de remboursement de l'acompte, livraison à prix et délai convenu) : https://www.maisons-france-confort.fr/mentions-legales/. HEXAOM Services est enregistré auprès de l'ORIAS en tant que Courtier en financement, Niveau 1, sous le numéro 14001345.Agence Maisons France Confort de Magny-le-Hongre (77700)
- Téléphone :
- 01 84 80 92 96
- Adressse :
- 11 rue de Courtalin
77700 Magny-le-Hongre, France
