Maison neuve à
Saint-Pierre-de-Bailleul (27920) Référence : MB2421787_2

Prix du projet : Maison avec Terrain

prix 266 890 €

  • 6 pièces
  • 4 chambres
  • Surface maison 89 m2

VENTE : maison T6 (89 m²) à Saint-Pierre-de-Bailleul
EMPLACEMENT PRIVILÉGIÉ - MAISON 6 PIÈCES NEUVE
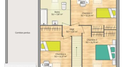
À proximité de la gare de Vernon-Giverny (Paris à 1 h par le Transilien J), nous vous proposons en vente, bénéficiant d'un emplacement d'exception dans Saint-Pierre-de-Bailleul (27920), cette maison de 6 pièces de 89 m² et de 1 000 m² de terrain. Elle se divise en quatre chambres, une cuisine et une salle de bains.
Il s'agit d'une maison de 2 niveaux. Elle est neuve.
Cette maison se trouve dans un quartier convoité. Il y a l'École Primaire la Grâce à moins de 10 minutes à pied. Côté transports en commun, on trouve les gares Vernon-Giverny et Gaillon-Aubevoye à moins de 10 minutes en voiture. L'autoroute A13 est accessible à 6 km et Évreux se situe à 21 km.
Elle est proposée à l'achat pour 266 890 €.
Contactez Mickael BESNARD (06-15-50-56-87) pour obtenir de plus amples renseignements sur la maison.

Annonce proposée par un Agent Commercial Partenaire.

Mentions légales

Terrain proposé par un partenaire foncier selon disponibilités et autorisation de publicité au prix de 90 000 €. Hors droit d'enregistrement et frais de notaire. Terrain + Maison proposés au prix de 266 890 € (Hors branchements et raccordements, papiers peints, peintures, revêtement de sol dans les chambres. Tarif modifiable sans préavis). Etiquette énergie : A. Différents modèles disponibles pour ce terrain. Assurances et garanties du constructeur (RC professionnelle, décennale, dommage ouvrage, garantie de remboursement de l'acompte, livraison à prix et délai convenu) : https://www.maisons-france-confort.fr/mentions-legales/. HEXAOM Services est enregistré auprès de l'ORIAS en tant que Courtier en financement, Niveau 1, sous le numéro 14001345.

Contactez l'agence de Vernon

02 32 51 45 05

    * Champs obligatoires

    Vos informations sont traitées par HEXAOM et transmises à un conseiller commercial qui vous contactera afin de répondre à votre demande. Les plans et images présentés sur notre site sont la propriété d’HEXAOM et ne peuvent pas être reproduits sans son accord. Pour retrouver notre politique de protection des données personnelles et exercer vos droits conformément à la « loi informatique et liberté » cliquez-ici.