Maison neuve à
Saint-Pierre-de-Bailleul
(27920) Référence :
MB2455769_2
Prix du projet : Maison avec Terrain
prix 250 980 €
- 6 pièces
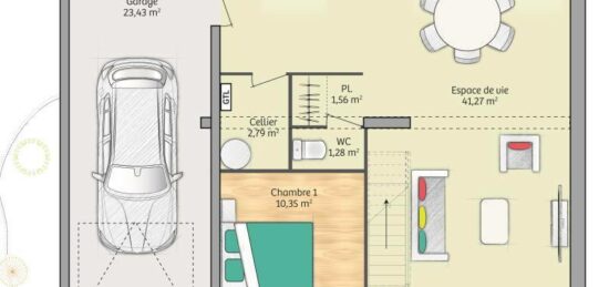
- 4 chambres
- Surface maison 89 m2
Saint-Pierre-de-Bailleul : maison de 6 pièces (89 m²) en vente
EMPLACEMENT PRIVILÉGIÉ - MAISON 6 PIÈCES NEUVE
À vendre : à côté du Transilien J (gare de Vernon-Giverny, 1 h de Paris), votre agence Maisons France Confort Vernon est ravie de vous présenter cette maison de 6 pièces de 89 m² et de 1 215 m² de terrain bénéficiant d'un emplacement d'exception dans Saint-Pierre-de-Bailleul (27920). Son intérieur est composé de quatre chambres, d'une cuisine et d'une salle de bains.
Cette maison compte 2 niveaux. Elle est neuve.
La maison est située dans un secteur prisé. L'École Primaire la Grâce est implantée à moins de 10 minutes à pied. Niveau transports en commun, on trouve deux gares (Vernon-Giverny et Gaillon-Aubevoye) à moins de 10 minutes en voiture. On trouve un accès à l'autoroute A13 à 6 km et Évreux est située à 21 km.
Elle est proposée à l'achat pour 250 980 €.
N'hésitez pas à prendre contact avec Mickael BESNARD (tél : 06-15-50-56-87) pour toute information sur la maison ou sur les démarches à suivre. Maisons France Confort Vernon vous accompagne dans tous vos projets immobiliers et à toutes les étapes de l'achat.
Annonce proposée par un Agent Commercial Partenaire.
Mentions légales
Terrain proposé par un partenaire foncier selon disponibilités et autorisation de publicité au prix de 83 000 €. Hors droit d'enregistrement et frais de notaire. Terrain + Maison proposés au prix de 250 980 € (Hors branchements et raccordements, papiers peints, peintures, revêtement de sol dans les chambres. Tarif modifiable sans préavis). Etiquette énergie : A. Différents modèles disponibles pour ce terrain. Assurances et garanties du constructeur (RC professionnelle, décennale, dommage ouvrage, garantie de remboursement de l'acompte, livraison à prix et délai convenu) : https://www.maisons-france-confort.fr/mentions-legales/. HEXAOM Services est enregistré auprès de l'ORIAS en tant que Courtier en financement, Niveau 1, sous le numéro 14001345.Agence Maisons France Confort de Vernon (27200)
- Téléphone :
- 02 32 51 45 05
- Adressse :
- 38 rue Carnot
27200 Vernon, France
