Maison neuve à
Saint-Priest
(69800) Référence :
KS2441142_3
Prix du projet : Maison avec Terrain
prix 394 000 €
- 4 pièces
- 4 chambres
- Surface maison 104 m2
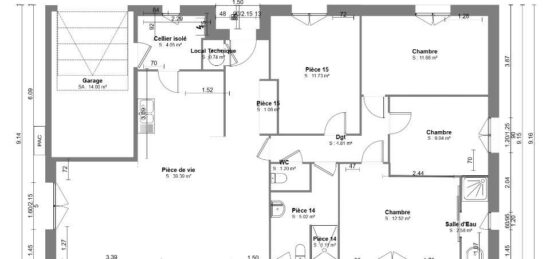
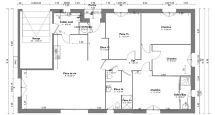
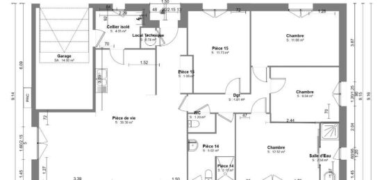
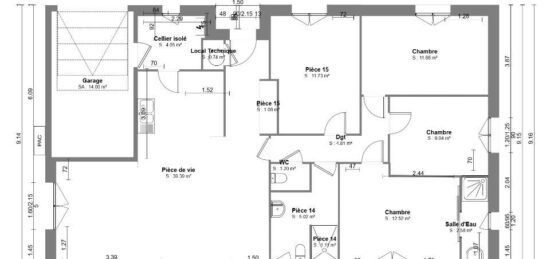
Maison T4 (104 m²) à vendre à Saint-Priest
Maison neuve de plain-pied
Votre agence Maisons France Confort Saint-Priest est heureuse de vous présenter cette maison neuve de 4 pièces, située à Saint-Priest (69800). Elle comprend quatre chambres, une cuisine équipée et deux salles de bains.
Le terrain attenant mesure 490 m².
À proximité, vous trouverez l'École Primaire Privée Jeanne d'Arc, le Collège Gérard Philipe, ainsi que trois structures d'accueil pour jeunes enfants, toutes accessibles en moins de 10 minutes à pied.
Pour vos déplacements, 10 gares se situent à moins de 10 minutes en voiture et l'accès à l'autoroute A43 est à seulement 1 km.
Cette maison est proposée au prix de 394 000 €.
Pour tout renseignement, contactez notre constructeur Kevin SAOUTHI au 04 78 40 45 55.
Concrétisez votre projet immobilier avec Maisons France Confort Saint-Priest.
Mentions légales
Terrain proposé par un partenaire foncier selon disponibilités et autorisation de publicité au prix de 220 000 €. Hors droit d'enregistrement et frais de notaire. Terrain + Maison proposés au prix de 394 000 € (Hors branchements et raccordements, papiers peints, peintures, revêtement de sol dans les chambres. Tarif modifiable sans préavis). Etiquette énergie : A. Différents modèles disponibles pour ce terrain. Assurances et garanties du constructeur (RC professionnelle, décennale, dommage ouvrage, garantie de remboursement de l'acompte, livraison à prix et délai convenu) : https://www.maisons-france-confort.fr/mentions-legales/. HEXAOM Services est enregistré auprès de l'ORIAS en tant que Courtier en financement, Niveau 1, sous le numéro 14001345.Agence Maisons France Confort de Saint-Priest (69800)
- Téléphone :
- 04 78 40 45 55
- Adressse :
- Cité de l'Environnement
69800 Saint-Priest, France
