Maison neuve à
Saint-Priest
(69800) Référence :
KS2441197_1
Prix du projet : Maison avec Terrain
prix 365 000 €
- 4 pièces
- 4 chambres
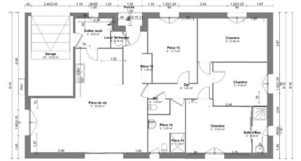
- Surface maison 104 m2
À vendre : Maison neuve 4 pièces (104 m²) à Saint-Priest - Quartier recherché
Située à Saint-Priest (69800), dans un secteur calme et pratique, cette maison de plain-pied de 104 m² allie confort moderne et emplacement stratégique.
Caractéristiques du bien
4 chambres spacieuses
Une cuisine ouverte à aménager selon vos envies
2 salles de bains
Terrain de 425 m², parfait pour les familles ou les amoureux des espaces extérieurs
Maison neuve, aux dernières normes, idéale pour un projet clé en main.
Un cadre de vie pratique et bien desservi
À moins de 10 minutes à pied de l'École Primaire Privée Jeanne d'Arc, du Collège Gérard Philipe et de plusieurs crèches
10 gares accessibles à moins de 10 minutes en voiture
Autoroute A43 à 1 km, facilitant vos déplacements quotidiens
Prix de vente : 365 000 €
Pour visiter ou en savoir plus, contactez Kevin SAOUTHI au 04 78 40 45 55.
Maisons France Confort Saint-Priest vous accompagne de la première visite jusqu'à la remise des clés.
Mentions légales
Terrain proposé par un partenaire foncier selon disponibilités et autorisation de publicité au prix de 199 000 €. Hors droit d'enregistrement et frais de notaire. Terrain + Maison proposés au prix de 365 000 € (Hors branchements et raccordements, papiers peints, peintures, revêtement de sol dans les chambres. Tarif modifiable sans préavis). Etiquette énergie : A. Différents modèles disponibles pour ce terrain. Assurances et garanties du constructeur (RC professionnelle, décennale, dommage ouvrage, garantie de remboursement de l'acompte, livraison à prix et délai convenu) : https://www.maisons-france-confort.fr/mentions-legales/. HEXAOM Services est enregistré auprès de l'ORIAS en tant que Courtier en financement, Niveau 1, sous le numéro 14001345.Agence Maisons France Confort de Saint-Priest (69800)
- Téléphone :
- 04 78 40 45 55
- Adressse :
- Cité de l'Environnement
69800 Saint-Priest, France
