Maison neuve à
Saint-Sernin
(47120) Référence :
AF2454703-0_3
Prix du projet : Maison avec Terrain
prix 199 000 €
- 4 pièces
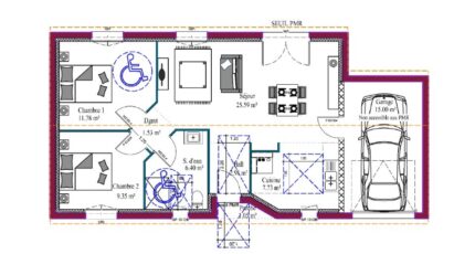
- 3 chambres
- Surface maison 90 m2
Maison T4 (90 m²) en vente à Saint-Sernin
IDÉALEMENT SITUÉE - MAISON 4 PIÈCES NEUVE
En vente à deux pas de Bergerac, nous vous proposons, idéalement située dans Saint-Sernin (47120), cette maison de 4 pièces de plain-pied de 90 m² et de 1 280 m² de terrain.
Conçue de plain-pied, elle compte trois chambres, une cuisine et une salle de bains. La maison est neuve.
Cette maison se trouve dans un secteur convoité. On y trouve une école primaire. Il y a une épicerie à proximité.
Son prix de vente est de 199 000 €.
Mentions légales
Idée de réalisation en modèle prêt à décorer sur l'un de nos terrains partenaires, sous réserve de disponibilités. Voir détails en agence.Agence Maisons de la Côte Atlantique de Marmande (47200)
- Téléphone :
- 05 53 84 47 83
- Adressse :
- Route de Bordeaux
47200 Marmande, France
