Maison neuve à
Saint-Sernin
(47120) Référence :
AF2470822-0_2
Prix du projet : Maison avec Terrain
prix 185 000 €
- 4 pièces
- 3 chambres
- Surface maison 90 m2
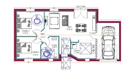
Maison F4 (90 m²) en vente à Saint-Sernin
MAISON 4 PIÈCES NEUVE - PROCHE DE BERGERAC
À quelques kilomètres de Bergerac, en vente à Saint-Sernin (47120), votre agence Maisons de la Côte Atlantique Marmande est ravie de vous proposer cette maison de 4 pièces de plain-pied de 90 m². Son intérieur compte trois chambres, une cuisine et une salle de bains.
Le terrain du bien s'étend sur 860 m².
La maison est neuve.
Il y a une école primaire dans le quartier. On trouve une épicerie à proximité de la maison.
Son prix de vente est de 185 000 €.
Mentions légales
Idée de réalisation en modèle prêt à décorer sur l'un de nos terrains partenaires, sous réserve de disponibilités. Voir détails en agence.Agence Maisons de la Côte Atlantique de Marmande (47200)
- Téléphone :
- 05 53 84 47 83
- Adressse :
- Route de Bordeaux
47200 Marmande, France
