Maison neuve à
Signy-Signets
(77640) Référence :
CY2430750_1
Prix du projet : Maison avec Terrain
prix 232 000 €
- 5 pièces
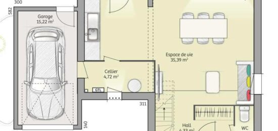
- 3 chambres
- Surface maison 90 m2
Signy-Signets : maison T5 (90 m²) en vente
PROCHE DE MEAUX - MAISON 5 PIÈCES NEUVE
En vente : à deux pas du Transilien P (gare de Changis-Saint-Jean, 35 min de Paris), nous vous proposons cette maison de 5 pièces de 90 m² à Signy-Signets (77640). Elle se divise en trois chambres, une cuisine et une salle de bains.
Le terrain du bien s'étend sur 412 m².
Cette maison comporte 2 niveaux. Elle est neuve.
Une école élémentaire est implantée dans le quartier. Niveau transports en commun, il y a quatre gares à moins de 10 minutes en voiture. On trouve un tennis à proximité de la maison.
Elle est à vendre pour la somme de 232 000 €.
Prenez contact avec notre agence (Cedric YAHIAOUI : 06-66-57-00-63) pour tout renseignement sur la maison ou sur les démarches à suivre.
Annonce proposée par un Agent Commercial Partenaire.
Mentions légales
Terrain proposé par un partenaire foncier selon disponibilités et autorisation de publicité au prix de 72 000 €. Hors droit d'enregistrement et frais de notaire. Terrain + Maison proposés au prix de 232 000 € (Hors branchements et raccordements, papiers peints, peintures, revêtement de sol dans les chambres. Tarif modifiable sans préavis). Etiquette énergie : A. Différents modèles disponibles pour ce terrain. Assurances et garanties du constructeur (RC professionnelle, décennale, dommage ouvrage, garantie de remboursement de l'acompte, livraison à prix et délai convenu) : https://www.maisons-france-confort.fr/mentions-legales/. HEXAOM Services est enregistré auprès de l'ORIAS en tant que Courtier en financement, Niveau 1, sous le numéro 14001345.Agence Maisons France Confort de Magny-le-Hongre (77700)
- Téléphone :
- 01 84 80 92 96
- Adressse :
- 11 rue de Courtalin
77700 Magny-le-Hongre, France
