Maison neuve à
Soisy-Bouy
(77650) Référence :
CY2430538_1
Prix du projet : Maison avec Terrain
prix 195 000 €
- 5 pièces
- 3 chambres
- Surface maison 90 m2
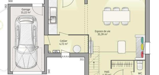
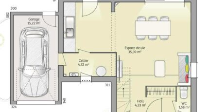
Maison T5 (90 m²) en vente à Soisy-Bouy
MAISON 5 PIÈCES NEUVE
À vendre : à deux pas du Transilien P (gare de Longueville, 1 h de Paris), Maisons France Confort Magny-le-Hongre vous présente à Soisy-Bouy (77650), cette maison de 5 pièces de 90 m².
Il s'agit d'une maison de 2 niveaux. Elle compte trois chambres, une cuisine et une salle de bains. Cette maison est neuve.
Le terrain du bien s'étend sur 315 m².
Une école élémentaire est implantée dans le quartier. Côté transports, il y a quatre gares à moins de 10 minutes en voiture. On trouve une bibliothèque, un tennis et une épicerie à quelques minutes à peine.
Elle est à vendre pour la somme de 195 000 €.
N'hésitez pas à prendre contact avec Cedric YAHIAOUI (tél : 06-66-57-00-63) pour plus d'informations sur le bien, sur les modalités de vente ou sur les démarches à suivre.
Annonce proposée par un Agent Commercial Partenaire.
Mentions légales
Terrain proposé par un partenaire foncier selon disponibilités et autorisation de publicité au prix de 35 000 €. Hors droit d'enregistrement et frais de notaire. Terrain + Maison proposés au prix de 195 000 € (Hors branchements et raccordements, papiers peints, peintures, revêtement de sol dans les chambres. Tarif modifiable sans préavis). Etiquette énergie : A. Différents modèles disponibles pour ce terrain. Assurances et garanties du constructeur (RC professionnelle, décennale, dommage ouvrage, garantie de remboursement de l'acompte, livraison à prix et délai convenu) : https://www.maisons-france-confort.fr/mentions-legales/. HEXAOM Services est enregistré auprès de l'ORIAS en tant que Courtier en financement, Niveau 1, sous le numéro 14001345.Agence Maisons France Confort de Magny-le-Hongre (77700)
- Téléphone :
- 01 84 80 92 96
- Adressse :
- 11 rue de Courtalin
77700 Magny-le-Hongre, France
