Maison neuve à
Thaon
(14610) Référence :
JS2485095_1
Prix du projet : Maison avec Terrain
prix 269 500 €
- 7 pièces
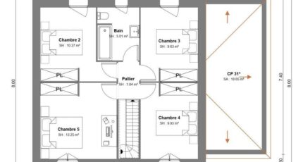
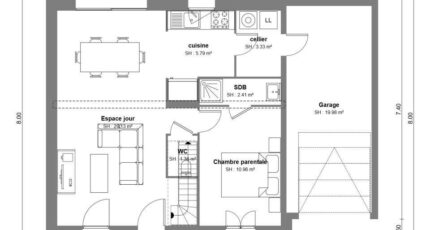
- 5 chambres
- Surface maison 102 m2
VENTE d'une maison T7 (102 m²) à Thaon
IDÉALEMENT SITUÉE - MAISON 7 PIÈCES NEUVE
En vente : située à deux pas de Caen, nous vous présentons cette maison de 7 pièces de 102 m² et de 482 m² de terrain idéalement située dans Thaon (14610). Elle compte cinq chambres, une cuisine et deux salles de bains.
Cette maison comporte 2 niveaux. Elle est neuve.
La maison se situe dans un secteur prisé. L'École Primaire Yvonne Guégan se trouve à moins de 10 minutes à pied. Côté transports, il y a deux gares (Saint-Germain-en-Laye Bel-Air-Fourqueux T13 et Bretteville-Norrey) à moins de 10 minutes en voiture. Les nationales N13 et N814 sont accessibles à moins de 8 km. On trouve un tennis et une épicerie à proximité.
Elle est à vendre pour la somme de 269 500 €.
Prenez contact avec notre agence (Emilie HUE : 06-29-81-46-66) pour plus d'informations sur la maison. Maisons France Confort Bayeux vous accompagne dans toutes vos démarches et dans tous vos projets immobiliers.
Annonce proposée par un Agent Commercial Partenaire.
Mentions légales
Terrain proposé par un partenaire foncier selon disponibilités et autorisation de publicité au prix de 99 500 €. Hors droit d'enregistrement et frais de notaire. Terrain + Maison proposés au prix de 269 500 € (Hors branchements et raccordements, papiers peints, peintures, revêtement de sol dans les chambres. Tarif modifiable sans préavis). Etiquette énergie : A. Différents modèles disponibles pour ce terrain. Assurances et garanties du constructeur (RC professionnelle, décennale, dommage ouvrage, garantie de remboursement de l'acompte, livraison à prix et délai convenu) : https://www.maisons-france-confort.fr/mentions-legales/. HEXAOM Services est enregistré auprès de l'ORIAS en tant que Courtier en financement, Niveau 1, sous le numéro 14001345.Agence Maisons France Confort de Bayeux (14400)
- Téléphone :
- 02 31 51 20 91
- Adressse :
- 2, rue Saint Loup
14400 Bayeux, France
