Maison neuve à
Thaon
(14610) Référence :
JS2485095_2
Prix du projet : Maison avec Terrain
prix 254 500 €
- 5 pièces
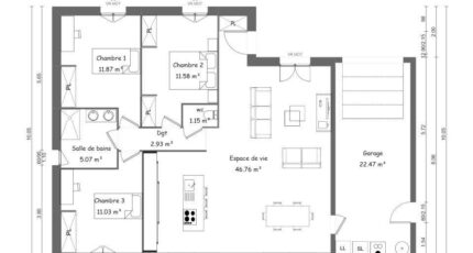
- 3 chambres
- Surface maison 95 m2
VENTE : maison de 5 pièces (95 m²) à Thaon
IDÉALEMENT SITUÉE - MAISON 5 PIÈCES NEUVE
À 10 km de Caen, nous vous présentons à vendre, idéalement située dans Thaon (14610), cette maison de 5 pièces de plain-pied de 95 m². Conçue de plain-pied, elle est composée de trois chambres, d'une cuisine et de deux salles de bains.
Le terrain du bien est de 482 m².
Cette maison est neuve.
La propriété est située dans un quartier convoité. On trouve l'École Primaire Yvonne Guégan à moins de 10 minutes à pied. Niveau transports, il y a deux gares (Saint-Germain-en-Laye Bel-Air-Fourqueux T13 et Bretteville-Norrey) à moins de 10 minutes en voiture. Les nationales N13 et N814 sont accessibles à moins de 8 km. On trouve un tennis et une épicerie dans les environs.
Elle est proposée à l'achat pour 154 900 €.
N'hésitez pas à prendre contact avec notre agence (HUE Emilie : 06-29-81-46-66) pour toute question sur la maison, sur les modalités de vente ou sur les démarches à suivre.
Annonce proposée par un Agent Commercial Partenaire.
Mentions légales
Terrain proposé par un partenaire foncier selon disponibilités et autorisation de publicité au prix de 99 500 €. Hors droit d'enregistrement et frais de notaire. Terrain + Maison proposés au prix de 254 500 € (Hors branchements et raccordements, papiers peints, peintures, revêtement de sol dans les chambres. Tarif modifiable sans préavis). Etiquette énergie : A. Différents modèles disponibles pour ce terrain. Assurances et garanties du constructeur (RC professionnelle, décennale, dommage ouvrage, garantie de remboursement de l'acompte, livraison à prix et délai convenu) : https://www.maisons-france-confort.fr/mentions-legales/. HEXAOM Services est enregistré auprès de l'ORIAS en tant que Courtier en financement, Niveau 1, sous le numéro 14001345.Agence Maisons France Confort de Bayeux (14400)
- Téléphone :
- 02 31 51 20 91
- Adressse :
- 2, rue Saint Loup
14400 Bayeux, France
