Maison neuve à
Thaon (14610) Référence : KD2490080_2

Prix du projet : Maison avec Terrain

prix 279 000 €

  • 5 pièces
  • 3 chambres
  • Surface maison 80 m2

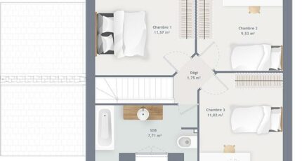
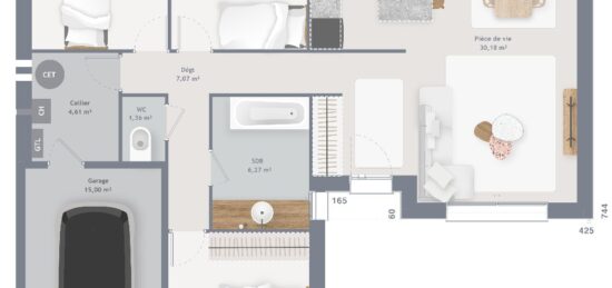
VENTE : maison de 5 pièces (80 m²) à Thaon
IDÉALEMENT SITUÉE - MAISON 5 PIÈCES NEUVE
À vendre : à 10 km de la Manche et à 10 km de Caen, notre agence Maisons France Confort Caen est heureuse de vous présenter, idéalement située dans Thaon (14610), cette maison de 5 pièces de 80 m² et de 489 m² de terrain.
Il s'agit d'une maison de 2 niveaux. Elle compte trois chambres, une cuisine et une salle de bains. Cette maison est neuve.
La maison se trouve dans un quartier recherché. Il y a l'École Primaire Yvonne Guégan à moins de 10 minutes à pied. Niveau transports, on trouve les gares Saint-Germain-en-Laye Bel-Air-Fourqueux T13 et Bretteville-Norrey à moins de 10 minutes en voiture. Les nationales N13 et N814 sont accessibles à moins de 8 km. Il y a un tennis et une épicerie dans les environs.
Elle est proposée à l'achat pour 279 000 €.
Prenez contact avec notre agence (Kevin DUCHESNE : 06-88-19-70-17) pour plus de renseignements sur la maison.

Mentions légales

Terrain proposé par un partenaire foncier selon disponibilités et autorisation de publicité au prix de 115 000 €. Hors droit d'enregistrement et frais de notaire. Terrain + Maison proposés au prix de 279 000 € (Hors branchements et raccordements, papiers peints, peintures, revêtement de sol dans les chambres. Tarif modifiable sans préavis). Etiquette énergie : A. Différents modèles disponibles pour ce terrain. Assurances et garanties du constructeur (RC professionnelle, décennale, dommage ouvrage, garantie de remboursement de l'acompte, livraison à prix et délai convenu) : https://www.maisons-france-confort.fr/mentions-legales/. HEXAOM Services est enregistré auprès de l'ORIAS en tant que Courtier en financement, Niveau 1, sous le numéro 14001345.

Contactez l'agence de Caen

02 31 86 12 21

    * Champs obligatoires

    Vos informations sont traitées par HEXAOM et transmises à un conseiller commercial qui vous contactera afin de répondre à votre demande. Les plans et images présentés sur notre site sont la propriété d’HEXAOM et ne peuvent pas être reproduits sans son accord. Pour retrouver notre politique de protection des données personnelles et exercer vos droits conformément à la « loi informatique et liberté » cliquez-ici.