Maison neuve à
Théza
(66200) Référence :
YT2452828_1
Prix du projet : Maison avec Terrain
prix 361 480 €
- 6 pièces
- 4 chambres
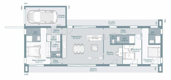
- Surface maison 117 m2
Théza : maison T6 (117 m²) à vendre
IDÉALEMENT SITUÉE - MAISON 6 PIÈCES NEUVE
En vente : à 10 km de la côte méditerranéenne et à 18 km de la frontière espagnole, nous sommes ravis de vous présenter cette maison de 6 pièces de 117 m² idéalement située dans Théza (66200).
Cette maison comporte 2 niveaux. Son intérieur offre quatre chambres, une cuisine et trois salles de bains. Cette maison est neuve.
Le terrain de la propriété est de 336 m².
Elle se trouve dans un quartier prisé. L'École Maternelle Marcel Pagnol et l'École Élémentaire Marcel Pagnol sont implantées à moins de 10 minutes à pied, tout comme une structure d'accueil pour les tout-petits. Niveau transports en commun, il y a les gares Elne et Perpignan à moins de 10 minutes en voiture. Il y a un accès à l'autoroute A9 à 8 km et Perpignan est située à 7 km. On trouve deux commerces, une épicerie et un bureau de poste dans les environs.
Son prix de vente est de 361 480 €.
Contactez notre agence (Yohan TOURSEL : 06-13-67-08-53) pour tout renseignement sur la propriété ou sur les démarches à suivre. Concrétisez vos projets immobiliers avec Maisons France Confort Perpignan.
Mentions légales
Terrain proposé par un partenaire foncier selon disponibilités et autorisation de publicité au prix de 139 480 €. Hors droit d'enregistrement et frais de notaire. Terrain + Maison proposés au prix de 361 480 € (Hors branchements et raccordements, papiers peints, peintures, revêtement de sol dans les chambres. Tarif modifiable sans préavis). Etiquette énergie : A. Différents modèles disponibles pour ce terrain. Assurances et garanties du constructeur (RC professionnelle, décennale, dommage ouvrage, garantie de remboursement de l'acompte, livraison à prix et délai convenu) : https://www.maisons-france-confort.fr/mentions-legales/. HEXAOM Services est enregistré auprès de l'ORIAS en tant que Courtier en financement, Niveau 1, sous le numéro 14001345.Agence Maisons France Confort de Perpignan (66000)
- Téléphone :
- 04 68 68 20 75
- Adressse :
- Rue du Docteur Henri Bonzoms
66000 Perpignan, France
