Maison neuve à
Villeneuve-de-la-Raho
(66180) Référence :
YT2389506_1
Prix du projet : Maison avec Terrain
prix 800 000 €
- 6 pièces
- 4 chambres
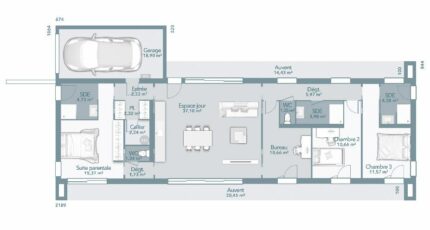
- Surface maison 115 m2
Villeneuve-de-la-Raho : maison F6 (115 m²) en vente
EMPLACEMENT PRIVILÉGIÉ - MAISON 6 PIÈCES NEUVE
À 14 km de la côte méditerranéenne et à moins de 18 km de l'Espagne, Maisons France Confort Perpignan vous propose cette maison de 6 pièces de plain-pied de 115 m² bénéficiant d'un emplacement d'exception dans Villeneuve-de-la-Raho (66180).
Conçue de plain-pied, elle compte quatre chambres, une cuisine et deux salles de bains. Cette maison est neuve.
Le terrain du bien s'étend sur 1 100 m².
Elle se situe dans un quartier prisé. L'École Élémentaire Alfred Sauvy est implantée à moins de 10 minutes à pied, tout comme deux crèches. Niveau transports en commun, on trouve deux gares (Elne et Perpignan) à moins de 10 minutes en voiture. L'autoroute A9 et la nationale N116 sont accessibles à moins de 8 km et Perpignan est située à 7 km. Il y a deux boulangeries, un commerce, un supermarché, un bureau de poste et deux poissonneries à proximité.
Elle est à vendre pour la somme de 800 000 €.
Prenez contact avec notre agence (TOURSEL Yohan : 06-13-67-08-53) pour tout renseignement sur cette maison, sur les démarches à suivre ou sur les modalités de vente.
Mentions légales
Terrain proposé par un partenaire foncier selon disponibilités et autorisation de publicité au prix de 430 000 €. Hors droit d'enregistrement et frais de notaire. Terrain + Maison proposés au prix de 800 000 € (Hors branchements et raccordements, papiers peints, peintures, revêtement de sol dans les chambres. Tarif modifiable sans préavis). Etiquette énergie : A. Différents modèles disponibles pour ce terrain. Assurances et garanties du constructeur (RC professionnelle, décennale, dommage ouvrage, garantie de remboursement de l'acompte, livraison à prix et délai convenu) : https://www.maisons-france-confort.fr/mentions-legales/. HEXAOM Services est enregistré auprès de l'ORIAS en tant que Courtier en financement, Niveau 1, sous le numéro 14001345.Agence Maisons France Confort de Perpignan (66000)
- Téléphone :
- 04 68 68 20 75
- Adressse :
- Rue du Docteur Henri Bonzoms
66000 Perpignan, France
