Maison neuve à
Tour-en-Bessin
(14400) Référence :
JS2485654_1
Prix du projet : Maison avec Terrain
prix 229 900 €
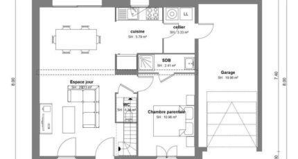
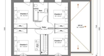
- 7 pièces
- 5 chambres
- Surface maison 102 m2
VENTE d'une maison de 7 pièces (102 m²) à Tour-en-Bessin
IDÉALEMENT SITUÉE - MAISON 7 PIÈCES NEUVE
Maisons France Confort Bayeux vous présente, idéalement située dans Tour-en-Bessin (14400), cette maison de 7 pièces de 102 m² et de 467 m² de terrain. Elle dispose de cinq chambres, d'une cuisine et de deux salles de bains.
Il s'agit d'une maison de 2 niveaux. Elle est neuve.
La maison se trouve dans un secteur convoité. Il y a l'École Primaire Victor Paquet à moins de 10 minutes à pied. Niveau transports, on trouve deux gares (Bayeux et Le Molay-Littry) à moins de 10 minutes en voiture. La nationale N13 est accessible à 2 km. Il y a une bibliothèque à quelques minutes.
Elle est proposée à l'achat pour 229 900 €.
Contactez Emilie HUE (tél : 06-29-81-46-66) pour plus de renseignements sur la maison ou sur les démarches à suivre.
Annonce proposée par un Agent Commercial Partenaire.
Mentions légales
Terrain proposé par un partenaire foncier selon disponibilités et autorisation de publicité au prix de 59 900 €. Hors droit d'enregistrement et frais de notaire. Terrain + Maison proposés au prix de 229 900 € (Hors branchements et raccordements, papiers peints, peintures, revêtement de sol dans les chambres. Tarif modifiable sans préavis). Etiquette énergie : A. Différents modèles disponibles pour ce terrain. Assurances et garanties du constructeur (RC professionnelle, décennale, dommage ouvrage, garantie de remboursement de l'acompte, livraison à prix et délai convenu) : https://www.maisons-france-confort.fr/mentions-legales/. HEXAOM Services est enregistré auprès de l'ORIAS en tant que Courtier en financement, Niveau 1, sous le numéro 14001345.Agence Maisons France Confort de Bayeux (14400)
- Téléphone :
- 02 31 51 20 91
- Adressse :
- 2, rue Saint Loup
14400 Bayeux, France
