Maison neuve à
Tour-en-Bessin
(14400) Référence :
JS2485686_2
Prix du projet : Maison avec Terrain
prix 222 400 €
- 7 pièces
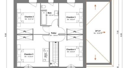
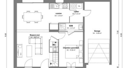
- 5 chambres
- Surface maison 102 m2
Maison T7 (102 m²) en vente à Tour-en-Bessin
IDÉALEMENT SITUÉE - MAISON 7 PIÈCES NEUVE
Maisons France Confort Bayeux vous propose cette maison de 7 pièces de 102 m² en vente idéalement située dans Tour-en-Bessin (14400). Elle inclut cinq chambres, une cuisine et deux salles de bains.
Le terrain de cette maison s'étend sur 403 m².
Cette maison possède 2 niveaux. Elle est neuve.
La maison est située dans un quartier prisé. On trouve l'École Primaire Victor Paquet à moins de 10 minutes à pied. Niveau transports en commun, il y a les gares Bayeux et Le Molay-Littry à moins de 10 minutes en voiture. Il y a un accès à la nationale N13 à 2 km. On trouve une bibliothèque à quelques minutes à peine.
Elle est proposée à l'achat pour 222 400 €.
N'hésitez pas à prendre contact avec Emilie HUE (06-29-81-46-66) pour tout renseignement sur la maison ou sur les modalités de vente. Donnez vie à vos projets immobiliers avec Maisons France Confort Bayeux.
Annonce proposée par un Agent Commercial Partenaire.
Mentions légales
Terrain proposé par un partenaire foncier selon disponibilités et autorisation de publicité au prix de 52 400 €. Hors droit d'enregistrement et frais de notaire. Terrain + Maison proposés au prix de 222 400 € (Hors branchements et raccordements, papiers peints, peintures, revêtement de sol dans les chambres. Tarif modifiable sans préavis). Etiquette énergie : A. Différents modèles disponibles pour ce terrain. Assurances et garanties du constructeur (RC professionnelle, décennale, dommage ouvrage, garantie de remboursement de l'acompte, livraison à prix et délai convenu) : https://www.maisons-france-confort.fr/mentions-legales/. HEXAOM Services est enregistré auprès de l'ORIAS en tant que Courtier en financement, Niveau 1, sous le numéro 14001345.Agence Maisons France Confort de Bayeux (14400)
- Téléphone :
- 02 31 51 20 91
- Adressse :
- 2, rue Saint Loup
14400 Bayeux, France
