Maison neuve à
Tournan-en-Brie (77220) Référence : DC2489081_2

Prix du projet : Maison avec Terrain

prix 374 605 €

  • 5 pièces
  • 3 chambres
  • Surface maison 90 m2

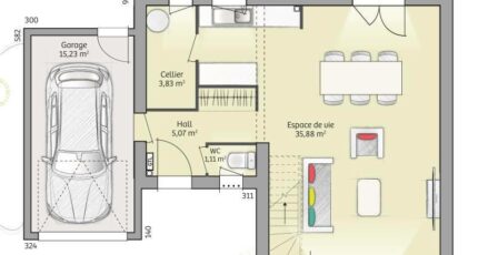
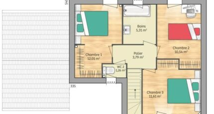
Maison de 5 pièces (90 m²) à vendre à Tournan-en-Brie
PROCHE DE MONTREUIL - MAISON 5 PIÈCES NEUVE
À proximité du RER E (station Tournan, 40 min de Paris), votre agence Maisons France Confort Melun est heureuse de vous proposer en vente à Tournan-en-Brie (77220), cette maison de 5 pièces de 90 m² et de 623 m² de terrain. Elle est composée de trois chambres, d'une cuisine et d'une salle de bains.
C'est une maison de 2 niveaux. Elle est neuve.
Des écoles primaires se trouvent à moins de 10 minutes à pied, tout comme trois crèches. Niveau transports en commun, il y a la station de RER Tournan (ligne E) ainsi que la gare Tournan-en-Brie à proximité. On trouve une bibliothèque, un tennis, des commerces, un bureau de poste, une boucherie-charcuterie, une supérette et quatre épiceries à quelques minutes à peine. Ne manquez pas le marché Place du marché chaque samedi matin.
Son prix de vente est de 374 605 €.
Contactez notre constructeur (David CORDIER : 06-10-79-38-15) pour toute question sur cette maison, sur les démarches à suivre ou sur les modalités de vente. Concrétisez vos projets immobiliers avec Maisons France Confort Melun.

Annonce proposée par un Agent Commercial Partenaire.

Mentions légales

Terrain proposé par un partenaire foncier selon disponibilités et autorisation de publicité au prix de 157 000 €. Hors droit d'enregistrement et frais de notaire. Terrain + Maison proposés au prix de 374 605 € (Hors branchements et raccordements, papiers peints, peintures, revêtement de sol dans les chambres. Tarif modifiable sans préavis). Etiquette énergie : A. Différents modèles disponibles pour ce terrain. Assurances et garanties du constructeur (RC professionnelle, décennale, dommage ouvrage, garantie de remboursement de l'acompte, livraison à prix et délai convenu) : https://www.maisons-france-confort.fr/mentions-legales/. HEXAOM Services est enregistré auprès de l'ORIAS en tant que Courtier en financement, Niveau 1, sous le numéro 14001345.

Contactez l'agence de Melun

01 64 14 43 20

    * Champs obligatoires

    Vos informations sont traitées par HEXAOM et transmises à un conseiller commercial qui vous contactera afin de répondre à votre demande. Les plans et images présentés sur notre site sont la propriété d’HEXAOM et ne peuvent pas être reproduits sans son accord. Pour retrouver notre politique de protection des données personnelles et exercer vos droits conformément à la « loi informatique et liberté » cliquez-ici.