Maison neuve à
Beaussais-sur-Mer
(22650) Référence :
LA2482208_4
Prix du projet : Maison avec Terrain
prix 453 500 €
- 4 pièces
- 3 chambres
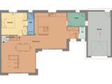
- Surface maison 125 m2
VENTE : maison de 4 pièces (125 m²) à Trégon
IDÉALEMENT SITUÉE - MAISON 4 PIÈCES NEUVE
En vente : à 10 km de la Manche et à quelques kilomètres de Saint-Malo, nous sommes heureux de vous présenter cette maison de 4 pièces de 125 m² et de 780 m² de terrain idéalement située dans Trégon (22650).
Cette maison compte 2 niveaux. Son intérieur comporte trois chambres, une cuisine et deux salles de bains. Cette maison est neuve.
La maison est située dans un secteur convoité. Plusieurs établissements scolaires (maternelle, élémentaire, primaire et collège) sont implantés à moins de 10 minutes en voiture, tout comme neuf structures d'accueil pour les enfants en bas âge à moins de 10 minutes à pied. Côté transports en commun, il y a les gares Plancoët et Corseul-Languenan à moins de 10 minutes en voiture. On trouve des tennis, des bibliothèques, trois ports de plaisance, un bassin de natation, des commerces, des boucheries-charcuteries, des poissonneries, des bureaux de poste et deux supérettes à quelques minutes. 5 marchés animent les environs.
Elle est à vendre pour la somme de 453 500 €.
Contactez Laetitia AMIRI (02-99-83-07-20) pour tout renseignement sur la maison. Maisons de l'Avenir Saint-Carné vous accompagne dans toutes vos démarches et dans tous vos projets immobiliers.
Mentions légales
Terrain proposé par un partenaire foncier selon disponibilités et autorisation de publicité au prix de 159 000 €. Hors droit d'enregistrement et frais de notaire. Terrain + Maison proposés au prix de 453 500 € (Hors branchements et raccordements, papiers peints, peintures, revêtement de sol dans les chambres. Tarif modifiable sans préavis). Etiquette énergie : A. Différents modèles disponibles pour ce terrain. Assurances et garanties du constructeur (RC professionnelle, décennale, dommage ouvrage, garantie de remboursement de l'acompte, livraison à prix et délai convenu) : https://www.maisonsdelavenir.com/mentions-legales/.Agence Maisons de l'Avenir de Saint-Carné (22100)
- Téléphone :
- 02 99 83 07 20
- Adressse :
- L'Ecotay
22100 Saint-Carné, France