Maison neuve à
Tremblay-en-France
(93290) Référence :
TM2223485_1
Prix du projet : Maison avec Terrain
prix 370 000 €
- 5 pièces
- 3 chambres
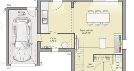
- Surface maison 90 m2
Maison F5 (90 m²) à vendre à Tremblay-en-France
IDÉALEMENT SITUÉE - MAISON 5 PIÈCES NEUVE
Proche du RER B (station Parc des Expositions, 25 min de Paris), découvrez cette maison de 5 pièces de 90 m² et de 250 m² de terrain idéalement située dans Tremblay-en-France (93290).
Cette maison comporte 2 niveaux. Elle comporte trois chambres, une cuisine et une salle de bains. Cette maison est neuve.
La maison est située dans un secteur recherché. L'École Primaire André Malraux est implantée à moins de 10 minutes à pied. Niveau transports, on trouve deux lignes de RER (B et D) ainsi que 24 gares à moins de 10 minutes en voiture. Il y a une bibliothèque, plusieurs commerces et une épicerie à proximité du logement.
Elle est proposée à l'achat pour 370 000 €.
N'hésitez pas à prendre contact avec notre agence (Teddy MELES : 06-61-07-06-81) pour plus d'informations sur la maison ou sur les modalités de vente. Maisons France Confort Magny-le-Hongre vous accompagne dans tous vos projets immobiliers et à toutes les étapes de l'achat.
Annonce proposée par un Agent Commercial Partenaire.
Mentions légales
Terrain proposé par un partenaire foncier selon disponibilités et autorisation de publicité au prix de 160 000 €. Hors droit d'enregistrement et frais de notaire. Maison proposée, avec un contrat de construction de maison individuelle, dans le cadre de la loi du 19/12/1990, au prix de 210 000 € (Hors branchements et raccordements, papiers peints, peintures, revêtement de sol dans les chambres, qui sont chiffrés dans les travaux qui restent à charge du client. Tarif modifiable sans préavis). Étiquette énergie : A. Différents modèles disponibles pour ce terrain. Assurances et garanties du constructeur comprises (RC professionnelle, décennale, dommage ouvrage).Agence Maisons France Confort de Magny-le-Hongre (77700)
- Téléphone :
- 01 84 80 92 96
- Adressse :
- 11 rue de Courtalin
77700 Magny-le-Hongre, France
