Maison neuve à
Tremblay-en-France
(93290) Référence :
MZ2266721_3
Prix du projet : Maison avec Terrain
prix 304 900 €
- 5 pièces
- 3 chambres
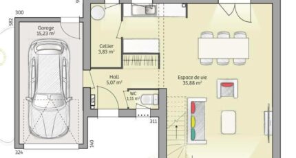
- Surface maison 90 m2
VENTE : maison T5 (90 m²) à Tremblay-en-France
IDÉALEMENT SITUÉE - MAISON 5 PIÈCES NEUVE
À quelques minutes de la station Parc des Expositions du RER B (25 min de Paris), Maisons France Confort Magny-le-Hongre vous présente cette maison de 5 pièces de 90 m² et de 230 m² de terrain à vendre idéalement située dans Tremblay-en-France (93290).
Il s'agit d'une maison de 2 niveaux. Elle comporte trois chambres, une cuisine et une salle de bains. Cette maison est neuve.
La maison est située dans un secteur recherché. Il y a l'École Primaire André Malraux à moins de 10 minutes à pied. Niveau transports en commun, on trouve deux lignes de RER (B et D) ainsi que 24 gares à moins de 10 minutes en voiture. Il y a une bibliothèque, sept commerces et une épicerie dans les environs.
Elle est à vendre pour la somme de 304 900 €.
N'hésitez pas à prendre contact avec Mehdi ZOUBIR (tél : 06-27-85-29-98) pour plus d'informations sur la maison ou sur les démarches à suivre. Donnez vie à vos projets immobiliers avec Maisons France Confort Magny-le-Hongre.
Annonce proposée par un Agent Commercial Partenaire.
Mentions légales
Terrain proposé par un partenaire foncier selon disponibilités et autorisation de publicité au prix de 180 000 €. Hors droit d'enregistrement et frais de notaire. Maison proposée, avec un contrat de construction de maison individuelle, dans le cadre de la loi du 19/12/1990, au prix de 124 900 € (Hors branchements et raccordements, papiers peints, peintures, revêtement de sol dans les chambres, qui sont chiffrés dans les travaux qui restent à charge du client. Tarif modifiable sans préavis). Étiquette énergie : A. Différents modèles disponibles pour ce terrain. Assurances et garanties du constructeur comprises (RC professionnelle, décennale, dommage ouvrage).Agence Maisons France Confort de Magny-le-Hongre (77700)
- Téléphone :
- 01 84 80 92 96
- Adressse :
- 11 rue de Courtalin
77700 Magny-le-Hongre, France
