Maison neuve à
Tremblay-les-Villages
(28170) Référence :
AD2480200_1
Prix du projet : Maison avec Terrain
prix 269 000 €
- 5 pièces
- 3 chambres
- Surface maison 97 m2
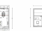
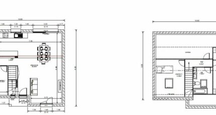
À Saint Chéron des Champs, hameau de Tremblay les Villages situé à 19 km de Chartres, Maisons France Confort Jouars Pontchartrain vous propose un projet de construction d'une maison de cinq pièces de plain pied d'une surface de 98 m² sur un terrain de 883 m².
La maison à réaliser comprend trois chambres une cuisine et une salle de bains.
Ce projet vous permet de concevoir une maison neuve adaptée à vos besoins et à votre mode de vie.
Le village dispose d' un ramassage scolaire est assuré pour les établissements des communes voisines.
La nationale N154 est accessible à environ 4 km.
Le prix maison plus terrain est de 269000 € hors frais annexe.
Le permis de construire est déjà validé, vous pouvez démarrer votre projet rapidement.
Pour toute information sur ce projet de maison vous pouvez contacter Amandine Duhamel au 06 34 48 03 67.
Mentions légales
Terrain proposé par un partenaire foncier selon disponibilités et autorisation de publicité au prix de 50 000 €. Hors droit d'enregistrement et frais de notaire. Terrain + Maison proposés au prix de 269 000 € (Hors branchements et raccordements, papiers peints, peintures, revêtement de sol dans les chambres. Tarif modifiable sans préavis). Etiquette énergie : A. Différents modèles disponibles pour ce terrain. Assurances et garanties du constructeur (RC professionnelle, décennale, dommage ouvrage, garantie de remboursement de l'acompte, livraison à prix et délai convenu) : https://www.maisons-france-confort.fr/mentions-legales/. HEXAOM Services est enregistré auprès de l'ORIAS en tant que Courtier en financement, Niveau 1, sous le numéro 14001345.Agence Maisons France Confort de Jouars-Pontchartrain (78760)
- Téléphone :
- 01 34 81 01 50
- Adressse :
- 3 allée André Le Nôtre
78760 Jouars-Pontchartrain, France
