Maison neuve à
Tremblay-les-Villages
(28170) Référence :
AD2483830_1
Prix du projet : Maison avec Terrain
prix 279 900 €
- 5 pièces
- 4 chambres
- Surface maison 120 m2
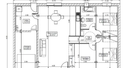
Maison de 5 pièces 120 m² à Saint Chéron des Champs
MAISON 5 PIÈCES NEUVE À CONSTRUIRE - PROCHE DE CHARTRES
À Saint Chéron des Champs, hameau de Tremblay les Villages situé à 19 km de Chartres, Maisons France Confort Jouars Pontchartrain vous propose un projet de construction d'une maison de cinq pièces de plain pied d'une surface de 101 m², implantée sur un terrain de 887 m².
La maison à réaliser comprend quatre chambres, une cuisine et une salle de bains.
Ce projet vous permet de concevoir une maison neuve confortable, lumineuse et adaptée à votre mode de vie.
Le hameau offre un environnement calme et rural, apprécié pour sa qualité de vie.
Un ramassage scolaire dessert les établissements des communes voisines, pratique pour les familles.
La nationale N154 est accessible à environ 4 km, facilitant les déplacements vers Chartres, Dreux ou les axes principaux.
Le secteur dispose également d'un court de tennis et de chemins de campagne agréables pour les activités de plein air.
Le prix maison plus terrain est de 279 900 € (hors frais annexe)
Prix terrain hors frais de notaire : 50 000 € en accord avec le propriétaire du terrain.
Permis de construire accepté, projet prêt à être lancé.
Pour toute information sur ce projet, vous pouvez contacter Amandine Duhamel au 06 34 48 03 67.
Maisons France Confort Jouars Pontchartrain vous accompagne dans la réalisation de votre maison à chaque étape.
Mentions légales
Terrain proposé par un partenaire foncier selon disponibilités et autorisation de publicité au prix de 50 000 €. Hors droit d'enregistrement et frais de notaire. Terrain + Maison proposés au prix de 279 900 € (Hors branchements et raccordements, papiers peints, peintures, revêtement de sol dans les chambres. Tarif modifiable sans préavis). Etiquette énergie : A. Différents modèles disponibles pour ce terrain. Assurances et garanties du constructeur (RC professionnelle, décennale, dommage ouvrage, garantie de remboursement de l'acompte, livraison à prix et délai convenu) : https://www.maisons-france-confort.fr/mentions-legales/. HEXAOM Services est enregistré auprès de l'ORIAS en tant que Courtier en financement, Niveau 1, sous le numéro 14001345.Agence Maisons France Confort de Jouars-Pontchartrain (78760)
- Téléphone :
- 01 34 81 01 50
- Adressse :
- 3 allée André Le Nôtre
78760 Jouars-Pontchartrain, France
