Maison neuve à
Valliquerville
(76190) Référence :
LC2444632_4
Prix du projet : Maison avec Terrain
prix 203 311 €
- 4 pièces
- 3 chambres
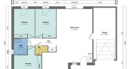
- Surface maison 90 m2
MAISON NEUVE DE 90 M² IDÉALEMENT SITUÉE À VALLIQUERVILLE
PRÉSENTATION DU BIEN
Découvrez cette maison neuve à construire située à Valliquerville, un secteur idéalement situé. La maison propose une surface habitable de 90 m² sur un terrain de 409 m², offrant un cadre adapté à la réalisation de votre projet résidentiel.
Cette maison comprend trois chambres, une cuisine et une salle de bains. Vous pourrez aménager cet espace selon vos besoins pour créer votre lieu de vie.
Construisez votre maison de plain-pied, une configuration sur un seul niveau qui facilite la circulation et l'organisation de votre futur logement.
Le terrain de 409 m² offre un espace extérieur généreux pour vos activités en plein air et l'aménagement du jardin de vos envies.
ENVIRONNEMENT
Valliquerville est une commune agréable située à proximité de la Manche, accessible à environ 26 kilomètres. Vous apprécierez le cadre résidentiel paisible.
Pour vos déplacements, la gare d'Yvetot se trouve à 4,5 kilomètres et celle de Foucart - Alvimare à 6,7 kilomètres. Deux autoroutes importantes, l'A29 et l'A150, sont accessibles respectivement à 4 et 9 kilomètres, facilitant vos trajets vers les grandes agglomérations.
Un établissement scolaire de niveau primaire, l'école primaire Jehan le Povremoyne, est implanté à moins d'une heure à pied, permettant un accès proche pour vos enfants.
Autour du bien, vous trouverez des commerces pour vos achats quotidiens.
NOUS CONTACTER
Cette maison neuve est proposée à la vente pour un prix de 203 311 euros.
Contactez Maisons France Confort Sainte-Marie-des-Champs pour plus de renseignements et bâtissez votre projet dans ce secteur attractif.
Pour toute information, appelez Lindsay COLLAY au O6-67-66-O8-77. Elle se tient à votre disposition pour vous accompagner dans la réalisation de votre future maison.
Mentions légales
Terrain proposé par un partenaire foncier selon disponibilités et autorisation de publicité au prix de 60 000 €. Hors droit d'enregistrement et frais de notaire. Terrain + Maison proposés au prix de 203 311 € (Hors branchements et raccordements, papiers peints, peintures, revêtement de sol dans les chambres. Tarif modifiable sans préavis). Etiquette énergie : A. Différents modèles disponibles pour ce terrain. Assurances et garanties du constructeur (RC professionnelle, décennale, dommage ouvrage, garantie de remboursement de l'acompte, livraison à prix et délai convenu) : https://www.maisons-france-confort.fr/mentions-legales/. HEXAOM Services est enregistré auprès de l'ORIAS en tant que Courtier en financement, Niveau 1, sous le numéro 14001345.Agence Maisons France Confort de Sainte-Marie-des-Champs (76190)
- Téléphone :
- 02 32 98 94 90
- Adressse :
- 74 avenue René Coty
76190 Sainte-Marie-des-Champs, France
