Maison neuve à
Varreddes (77910) Référence : CY2430820_1

Prix du projet : Maison avec Terrain

prix 247 000 €

  • 5 pièces
  • 3 chambres
  • Surface maison 90 m2

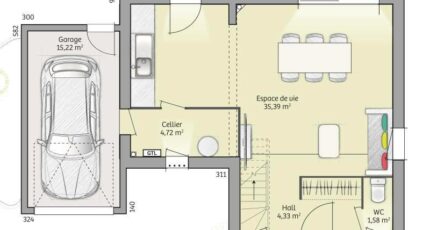
VENTE d'une maison de 5 pièces (90 m²) à Varreddes
PROCHE DE MEAUX - MAISON 5 PIÈCES NEUVE
À vendre : proche du Transilien P (gare de Trilport, 30 min de Paris), nous vous proposons cette maison de 5 pièces de 90 m² et de 146 m² de terrain à Varreddes (77910).
Cette maison compte 2 niveaux. Son intérieur offre trois chambres, une cuisine et une salle de bains. Cette maison est neuve.
Il y a l'École Élémentaire la Tournoye et l'École Maternelle le Grand Chemin à moins de 10 minutes à pied. Côté transports en commun, on trouve cinq gares à moins de 10 minutes en voiture. Il y a un tennis, un commerce, une boulangerie, une épicerie et un bureau de poste à proximité.
Elle est à vendre pour la somme de 247 000 €.
N'hésitez pas à prendre contact avec notre agence (YAHIAOUI Cedric : 06-66-57-00-63) pour tout renseignement sur la maison, sur les démarches à suivre ou sur les modalités de vente.

Annonce proposée par un Agent Commercial Partenaire.

Mentions légales

Terrain proposé par un partenaire foncier selon disponibilités et autorisation de publicité au prix de 87 000 €. Hors droit d'enregistrement et frais de notaire. Terrain + Maison proposés au prix de 247 000 € (Hors branchements et raccordements, papiers peints, peintures, revêtement de sol dans les chambres. Tarif modifiable sans préavis). Etiquette énergie : A. Différents modèles disponibles pour ce terrain. Assurances et garanties du constructeur (RC professionnelle, décennale, dommage ouvrage, garantie de remboursement de l'acompte, livraison à prix et délai convenu) : https://www.maisons-france-confort.fr/mentions-legales/. HEXAOM Services est enregistré auprès de l'ORIAS en tant que Courtier en financement, Niveau 1, sous le numéro 14001345.

Contactez l'agence de Magny-le-Hongre

01 84 80 92 96

    * Champs obligatoires

    Vos informations sont traitées par HEXAOM et transmises à un conseiller commercial qui vous contactera afin de répondre à votre demande. Les plans et images présentés sur notre site sont la propriété d’HEXAOM et ne peuvent pas être reproduits sans son accord. Pour retrouver notre politique de protection des données personnelles et exercer vos droits conformément à la « loi informatique et liberté » cliquez-ici.