Maison neuve à
Varreddes
(77910) Référence :
CY2434375_3
Prix du projet : Maison avec Terrain
prix 260 000 €
- 5 pièces
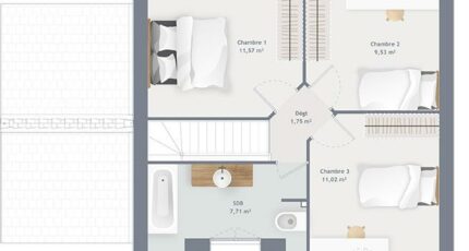
- 3 chambres
- Surface maison 80 m2
VENTE : maison de 5 pièces (80 m²) à Varreddes
PROCHE GARE - MAISON 5 PIÈCES NEUVE
En vente : au pied de la gare de Trilport (Paris à 30 min par le Transilien P), nous vous proposons cette maison de 5 pièces de 80 m² et de 146 m² de terrain dans Varreddes (77910), proche de la gare.
Cette maison compte 2 niveaux. Elle est composée de trois chambres, d'une cuisine et d'une salle de bains. La maison est neuve.
Il y a l'École Élémentaire la Tournoye et l'École Maternelle le Grand Chemin à moins de 10 minutes à pied. Côté transports en commun, on trouve cinq gares à moins de 10 minutes en voiture. On trouve un tennis, un commerce, une boulangerie, une épicerie et un bureau de poste à proximité.
Elle est à vendre pour la somme de 260 000 €.
Contactez notre agence (Cedric YAHIAOUI : 06-66-57-00-63) pour toute question sur la maison.
Annonce proposée par un Agent Commercial Partenaire.
Mentions légales
Terrain proposé par un partenaire foncier selon disponibilités et autorisation de publicité au prix de 87 000 €. Hors droit d'enregistrement et frais de notaire. Terrain + Maison proposés au prix de 260 000 € (Hors branchements et raccordements, papiers peints, peintures, revêtement de sol dans les chambres. Tarif modifiable sans préavis). Etiquette énergie : A. Différents modèles disponibles pour ce terrain. Assurances et garanties du constructeur (RC professionnelle, décennale, dommage ouvrage, garantie de remboursement de l'acompte, livraison à prix et délai convenu) : https://www.maisons-france-confort.fr/mentions-legales/. HEXAOM Services est enregistré auprès de l'ORIAS en tant que Courtier en financement, Niveau 1, sous le numéro 14001345.Agence Maisons France Confort de Mareuil-lès-Meaux (77100)
- Téléphone :
- 01 60 09 28 30
- Adressse :
- Domexpo Est Village La Hayette
77100 Mareuil-lès-Meaux, France
