Maison neuve à
Varreddes
(77910) Référence :
CY2457829_1
Prix du projet : Maison avec Terrain
prix 269 000 €
- 5 pièces
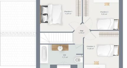
- 3 chambres
- Surface maison 80 m2
VENTE d'une maison de 5 pièces (80 m²) à Varreddes
IDÉALEMENT SITUÉE - MAISON 5 PIÈCES NEUVE
À vendre : à proximité de la gare de Trilport (Paris à 30 min par le Transilien P), laissez vous charmer par cette maison de 5 pièces de 80 m² idéalement située dans Varreddes (77910).
Cette maison comporte 2 niveaux. Elle inclut trois chambres, une cuisine et une salle de bains. La maison est neuve.
Le terrain de la propriété est de 146 m².
La maison se trouve dans un quartier convoité. Il y a l'École Élémentaire la Tournoye et l'École Maternelle le Grand Chemin à moins de 10 minutes à pied. Niveau transports en commun, on trouve cinq gares à moins de 10 minutes en voiture. Il y a un tennis, un bureau de poste et une épicerie à quelques minutes.
Elle est proposée à l'achat pour 269 000 €.
Prenez contact avec Cedric YAHIAOUI (tél : 06-66-57-00-63) pour toute question sur la maison. Maisons France Confort Mareuil-lès-Meaux vous accompagne dans tous vos projets immobiliers et à toutes les étapes de l'achat.
Annonce proposée par un Agent Commercial Partenaire.
Mentions légales
Terrain proposé par un partenaire foncier selon disponibilités et autorisation de publicité au prix de 79 000 €. Hors droit d'enregistrement et frais de notaire. Terrain + Maison proposés au prix de 269 000 € (Hors branchements et raccordements, papiers peints, peintures, revêtement de sol dans les chambres. Tarif modifiable sans préavis). Etiquette énergie : A. Différents modèles disponibles pour ce terrain. Assurances et garanties du constructeur (RC professionnelle, décennale, dommage ouvrage, garantie de remboursement de l'acompte, livraison à prix et délai convenu) : https://www.maisons-france-confort.fr/mentions-legales/. HEXAOM Services est enregistré auprès de l'ORIAS en tant que Courtier en financement, Niveau 1, sous le numéro 14001345.Agence Maisons France Confort de Mareuil-lès-Meaux (77100)
- Téléphone :
- 01 60 09 28 30
- Adressse :
- Domexpo Est Village La Hayette
77100 Mareuil-lès-Meaux, France
