Maison neuve à
Vaucourtois
(77580) Référence :
TR2418387_2
Prix du projet : Maison avec Terrain
prix 306 000 €
- 5 pièces
- 3 chambres
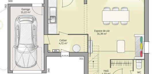
- Surface maison 90 m2
VENTE : maison T5 (90 m²) à Vaucourtois
PROCHE DE NOISY-LE-GRAND - MAISON 5 PIÈCES NEUVE
Proche du Transilien P (gare de Trilport, 30 min de Paris), laissez vous charmer par cette maison de 5 pièces de plain-pied de 90 m² en vente à Vaucourtois (77580).
Conçue de plain-pied, elle offre trois chambres, une cuisine et deux salles de bains. Cette maison est neuve.
Le terrain du bien est de 494 m².
Il y a une école primaire dans le quartier. Niveau transports en commun, on trouve huit gares à moins de 10 minutes en voiture.
Son prix de vente est de 306 000 €.
N'hésitez pas à prendre contact avec Thomas ROUSSEL (06-67-03-68-69) pour toute question sur cette maison. Maisons France Confort Mareuil-lès-Meaux est là pour vous accompagner dans toutes vos démarches.
Annonce proposée par un Agent Commercial Partenaire.
Mentions légales
Terrain proposé par un partenaire foncier selon disponibilités et autorisation de publicité au prix de 144 000 €. Hors droit d'enregistrement et frais de notaire. Terrain + Maison proposés au prix de 306 000 € (Hors branchements et raccordements, papiers peints, peintures, revêtement de sol dans les chambres. Tarif modifiable sans préavis). Etiquette énergie : A. Différents modèles disponibles pour ce terrain. Assurances et garanties du constructeur (RC professionnelle, décennale, dommage ouvrage, garantie de remboursement de l'acompte, livraison à prix et délai convenu) : https://www.maisons-france-confort.fr/mentions-legales/. HEXAOM Services est enregistré auprès de l'ORIAS en tant que Courtier en financement, Niveau 1, sous le numéro 14001345.Agence Maisons France Confort de Mareuil-lès-Meaux (77100)
- Téléphone :
- 01 60 09 28 30
- Adressse :
- Domexpo Est Village La Hayette
77100 Mareuil-lès-Meaux, France
