Maison neuve à
Vaucourtois
(77580) Référence :
CY2468745_1
Prix du projet : Maison avec Terrain
prix 334 000 €
- 5 pièces
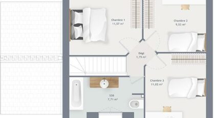
- 3 chambres
- Surface maison 80 m2
Maison de 5 pièces (80 m²) en vente à Vaucourtois
IDÉALEMENT SITUÉE - MAISON 5 PIÈCES NEUVE
À vendre : proche de la gare de Trilport (Paris à 30 min avec le Transilien P), Maisons France Confort Mareuil-lès-Meaux vous présente cette maison de 5 pièces de 80 m² et de 494 m² de terrain idéalement située dans Vaucourtois (77580). Son intérieur inclut trois chambres, une cuisine et une salle de bains.
C'est une maison de 2 niveaux. Elle est neuve.
La maison se situe dans un secteur convoité. Une école primaire y est implantée. Côté transports en commun, on trouve huit gares à moins de 10 minutes en voiture.
Elle est à vendre pour la somme de 334 000 €.
Contactez notre agence (Mehdi ZOUBIR : 06-27-85-29-98) pour obtenir de plus amples renseignements sur la maison, sur les démarches à suivre ou sur les modalités de vente.
Annonce proposée par un Agent Commercial Partenaire.
Mentions légales
Terrain proposé par un partenaire foncier selon disponibilités et autorisation de publicité au prix de 144 000 €. Hors droit d'enregistrement et frais de notaire. Terrain + Maison proposés au prix de 334 000 € (Hors branchements et raccordements, papiers peints, peintures, revêtement de sol dans les chambres. Tarif modifiable sans préavis). Etiquette énergie : A. Différents modèles disponibles pour ce terrain. Assurances et garanties du constructeur (RC professionnelle, décennale, dommage ouvrage, garantie de remboursement de l'acompte, livraison à prix et délai convenu) : https://www.maisons-france-confort.fr/mentions-legales/. HEXAOM Services est enregistré auprès de l'ORIAS en tant que Courtier en financement, Niveau 1, sous le numéro 14001345.Agence Maisons France Confort de Mareuil-lès-Meaux (77100)
- Téléphone :
- 01 60 09 28 30
- Adressse :
- Domexpo Est Village La Hayette
77100 Mareuil-lès-Meaux, France
