Maison neuve à
Vélines
(24230) Référence :
BD2388982_4
Prix du projet : Maison avec Terrain
prix 280 000 €
- 7 pièces
- 4 chambres
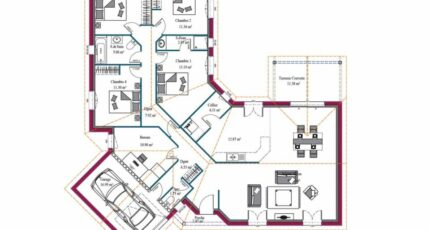
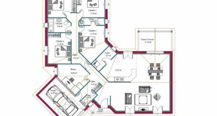
- Surface maison 146 m2
Votre future maison neuve de 145m2 à Vélines à partir de 280 000 Euros.
Les Maisons MCA vous proposent de construire cette belle maison neuve de 145m2 habitables, idéalement située sur la commune de Vélines
Implantée sur ce beau terrain plat de 1200m2, bien exposé, elle offre un cadre de vie agréable à seulement quelques minutes des commodités.
Avec son espace de vie convivial et lumineux qui se compose :
d'un salon/séjour
-d'une cuisine ouverte
-d'une cellier facilitant l'organisation
Un espace nuit optimisé pour toute la famille avec:
-4 chambres entre 10 et 12m2, chacune avec emplacements pour placards intégrés
-Bureau
-2 salles de bain ou salles d'eau à votre convenance
-Wc indépendant
-Garage
Ce modèle a été pensé pour offrir un espace de vie agréable et bien agencé, parfait pour une famille. Son architecture contemporaine et ses volumes optimisés en font un habitat confortable, pratique et économe en énergie.
100% personnalisable, elle s'adapte à vos envies: aménagement des espaces, finitions, équipements.
Prix maison + terrain: à partir de 280 000 euros *
*Hors frais de notaire, hors viabilisation, hors terrassement, assainissement, adaptation à prévoir en fonction d'une visite technique sur le terrain, hors peintures intérieures et cuisine.
Pour plus d'informations et une étude personnalisée de votre projet contactez notre agent local Benoît DURAND au O6 65 85 53 20.
Nous vous accompagnons à chaque étape de votre projet!!
Mentions légales
Idée de réalisation en modèle prêt à décorer sur l'un de nos terrains partenaires, sous réserve de disponibilités. Voir détails en agence.Agence Maisons de la Côte Atlantique de Bergerac (24100)
- Téléphone :
- 05 53 22 30 10
- Adressse :
- La Cavaille Nord
24100 Bergerac, France
