Maison neuve à
Lamothe-Montravel
(24230) Référence :
DL2453130_1
Prix du projet : Maison avec Terrain
prix 280 900 €
- 7 pièces
- 4 chambres
- Surface maison 146 m2
David LOPES des maisons MCA vous propose d'adapter le modèle Plaisir Sud, sur ce joli terrain d'environ 1900m², sur la commune de Lamothe Montravel, a environ 10 minutes de Castillon la Bataille.
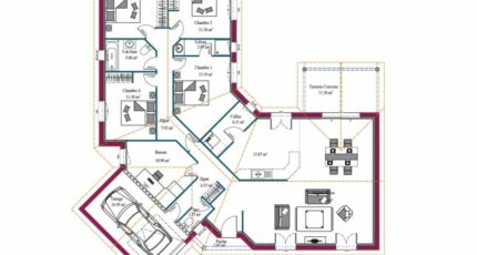
Notre modèle Plaisir Sud d'une superficie de 146 m2 est la maison familiale par excellence !
Elle dispose d'une une cuisine semi ouverte avec cellier attenant, donnant sur une magnifique pièce de vie traversante, baignée de lumière grâce à ses nombreuses ouvertures, donnant sur une belle terrasse couverte, pour offrir un espace jour de plus de 60m2.
Le coté nuit est composé de 3 grandes chambres avec placards, une suite parentale avec sa propre salle d'eau, un bureau de plus de 11m2, et une salle de bains avec wc.
Un garage de près de 17m2, vient compléter ce bel ensemble.
Le prix affiché comprend le terrain, les frais de notaire, les frais de raccordement, et cette maison livrée prête à décorer.
N'attendez plus, contactez vite votre conseiller David LOPES au O6-5O-88-58-8O à l'agence MCA de Libourne, afin qu'il vous guide dans les démarches et vous accompagne dans ce projet de construction personnalisé.
Mentions légales
Idée de réalisation en modèle prêt à décorer sur l'un de nos terrains partenaires, sous réserve de disponibilités. Voir détails en agence.Agence Maisons de la Côte Atlantique de Libourne (33500)
- Téléphone :
- 05 57 48 72 88
- Adressse :
- 99, Avenue du Général de Gaulle
33500 Libourne, France
