Maison neuve à
Verberie
(60410) Référence :
FBsaintines99_2
Prix du projet : Maison avec Terrain
prix 281 000 €
- 5 pièces
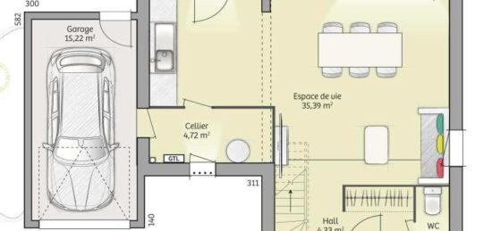
- 4 chambres
- Surface maison 90 m2
VENTE d'une maison de 5 pièces (90 m²) à Saintines
EMPLACEMENT PRIVILÉGIÉ - MAISON 5 PIÈCES NEUVE
À 13 km de Compiègne, laissez vous charmer par cette maison de 5 pièces de 90 m² bénéficiant d'un emplacement privilégié dans Saintines (60410). Elle dispose de quatre chambres, d'une cuisine et de deux salles de bains.
Le terrain de la propriété est de 434 m².
Il s'agit d'une maison de 2 niveaux. Elle est neuve.
La maison se trouve dans un secteur recherché. L'École Primaire L. Collas est implantée à moins de 10 minutes à pied. Niveau transports en commun, il y a quatre gares à moins de 10 minutes en voiture. L'autoroute A1 est accessible à 6 km. On trouve une bibliothèque dans les environs.
Son prix de vente est de 281 000 €.
Prenez contact avec notre agence (Fabrice BONELLO : 06-09-50-50-09) pour toute question sur la maison. Maisons France Confort Beauvais vous accompagne dans toutes vos démarches et dans tous vos projets immobiliers.
Mentions légales
Terrain proposé par un partenaire foncier selon disponibilités et autorisation de publicité au prix de 80 900 €. Hors droit d'enregistrement et frais de notaire. Terrain + Maison proposés au prix de 281 000 € (Hors branchements et raccordements, papiers peints, peintures, revêtement de sol dans les chambres. Tarif modifiable sans préavis). Etiquette énergie : A. Différents modèles disponibles pour ce terrain. Assurances et garanties du constructeur (RC professionnelle, décennale, dommage ouvrage, garantie de remboursement de l'acompte, livraison à prix et délai convenu) : https://www.maisons-france-confort.fr/mentions-legales/. HEXAOM Services est enregistré auprès de l'ORIAS en tant que Courtier en financement, Niveau 1, sous le numéro 14001345.Agence Maisons France Confort de Beauvais (60000)
- Téléphone :
- 03 44 04 40 04
- Adressse :
- 42 rue Pierre Jacoby
60000 Beauvais, France
