Maison neuve à
Verberie (60410) Référence : XDSS2425221_1

Prix du projet : Maison avec Terrain

prix 335 000 €

  • 6 pièces
  • 4 chambres
  • Surface maison 105 m2

Saint-Vaast-de-Longmont (60) - Projet Maison + Terrain + Frais annexes

Dans un cadre calme et privilégié, au fond d'une impasse, découvrez ce projet de construction clé en main sur un beau terrain plat de 1 169 m², avec 22 ml de façade.

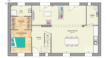
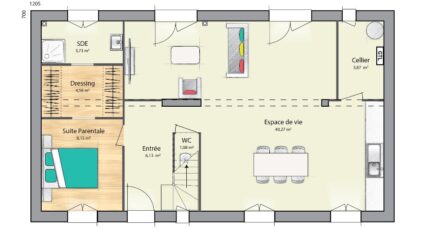
Nous vous proposons une maison traditionnelle de 105 m² habitables, comprenant :

Au rez-de-chaussée : une belle pièce de vie lumineuse avec cuisine ouverte, une suite parentale avec salle d'eau, WC indépendant.

À l'étage (combles aménagés) : 3 chambres confortables et une salle de bain familiale.

Maison fonctionnelle, idéale pour une famille, alliant confort moderne et optimisation des espaces.
Projet sans garage, personnalisable selon vos envies.

👉 Prix comprenant terrain + maison + frais annexes (hors frais de notaire).

Une belle opportunité pour concrétiser votre projet de vie dans un environnement paisible, à proximité de Compiègne et des grands axes.

Renseignements et étude personnalisée sur demande auprès de Xavier Dos Santos au 06 16 27 53 27.

Mentions légales

Terrain proposé par un partenaire foncier selon disponibilités et autorisation de publicité au prix de 99 000 €. Hors droit d'enregistrement et frais de notaire. Terrain + Maison proposés au prix de 335 000 € (Hors branchements et raccordements, papiers peints, peintures, revêtement de sol dans les chambres. Tarif modifiable sans préavis). Etiquette énergie : A. Différents modèles disponibles pour ce terrain. Assurances et garanties du constructeur (RC professionnelle, décennale, dommage ouvrage, garantie de remboursement de l'acompte, livraison à prix et délai convenu) : https://www.maisons-france-confort.fr/mentions-legales/. HEXAOM Services est enregistré auprès de l'ORIAS en tant que Courtier en financement, Niveau 1, sous le numéro 14001345.

Contactez l'agence de Compiègne

03 44 86 81 34

    * Champs obligatoires

    Vos informations sont traitées par HEXAOM et transmises à un conseiller commercial qui vous contactera afin de répondre à votre demande. Les plans et images présentés sur notre site sont la propriété d’HEXAOM et ne peuvent pas être reproduits sans son accord. Pour retrouver notre politique de protection des données personnelles et exercer vos droits conformément à la « loi informatique et liberté » cliquez-ici.