Maison neuve à
Villedieu-les-Poêles
(50800) Référence :
JS2485575_2
Prix du projet : Maison avec Terrain
prix 233 100 €
- 7 pièces
- 5 chambres
- Surface maison 102 m2
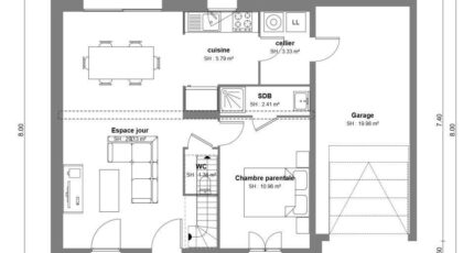
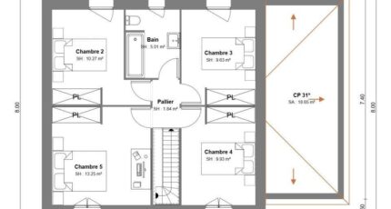
Maison de 7 pièces (102 m²) en vente à Villedieu-les-Poêles
IDÉALEMENT SITUÉE - MAISON 7 PIÈCES NEUVE
Nous sommes ravis de vous présenter en vente, idéalement située dans Villedieu-les-Poêles (50800), cette maison de 7 pièces de 102 m². Son intérieur compte cinq chambres, une cuisine et deux salles de bains.
Le terrain de la propriété est de 464 m².
Cette maison possède 2 niveaux. Elle est neuve.
La maison est située dans un quartier attractif. On trouve cinq établissements scolaires à moins de 10 minutes à pied. Niveau transports en commun, il y a la gare Villedieu-les-Poêles à quelques pas de la maison. Il y a un accès à l'autoroute A84 à 2 km. On trouve une bibliothèque, un bassin de natation, un tennis, des commerces, trois boucheries-charcuteries, deux épiceries, une supérette et un bureau de poste à quelques minutes à peine. Enfin, le marché Centre-Ville a lieu chaque mardi matin.
Son prix de vente est de 233 100 €.
Contactez Emilie HUE (06-29-81-46-66) pour toute question sur la maison. Donnez vie à vos projets immobiliers avec Maisons France Confort Bayeux.
Annonce proposée par un Agent Commercial Partenaire.
Mentions légales
Terrain proposé par un partenaire foncier selon disponibilités et autorisation de publicité au prix de 33 100 €. Hors droit d'enregistrement et frais de notaire. Terrain + Maison proposés au prix de 233 100 € (Hors branchements et raccordements, papiers peints, peintures, revêtement de sol dans les chambres. Tarif modifiable sans préavis). Etiquette énergie : A. Différents modèles disponibles pour ce terrain. Assurances et garanties du constructeur (RC professionnelle, décennale, dommage ouvrage, garantie de remboursement de l'acompte, livraison à prix et délai convenu) : https://www.maisons-france-confort.fr/mentions-legales/. HEXAOM Services est enregistré auprès de l'ORIAS en tant que Courtier en financement, Niveau 1, sous le numéro 14001345.Agence Maisons France Confort de Bayeux (14400)
- Téléphone :
- 02 31 51 20 91
- Adressse :
- 2, rue Saint Loup
14400 Bayeux, France
