Maison neuve à
Villeparisis
(77270) Référence :
TM2433250_1
Prix du projet : Maison avec Terrain
prix 380 000 €
- 5 pièces
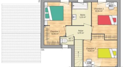
- 3 chambres
- Surface maison 90 m2
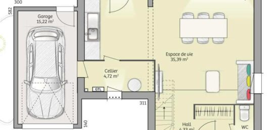
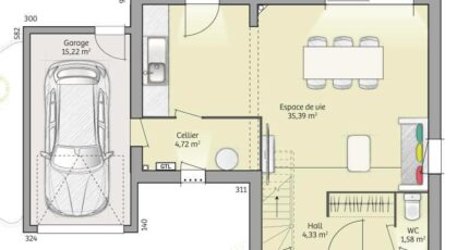
VENTE d'une maison de 5 pièces (90 m²) à Villeparisis
MAISON 5 PIÈCES NEUVE
À vendre : à côté du RER B (station Villeparisis-Mitry-le-Neuf, 30 min de Paris), Maisons France Confort Magny-le-Hongre vous présente à Villeparisis (77270), cette maison de 5 pièces de 90 m².
C'est une maison de 2 niveaux. Elle compte trois chambres, une cuisine et une salle de bains. La maison est neuve.
Le terrain de la propriété s'étend sur 250 m².
Plusieurs écoles (maternelle, élémentaire, primaire et collège) se trouvent à moins de 10 minutes à pied. Niveau transports en commun, il y a les lignes B et E du RER ainsi que 26 gares à moins de 10 minutes en voiture. On trouve un bassin de natation, une bibliothèque, un tennis, des commerces, quatre boulangeries, un bureau de poste, une boucherie-charcuterie et une supérette dans les environs. Enfin, le marché Rue de Gaulle anime les environs.
Elle est à vendre pour la somme de 380 000 €.
N'hésitez pas à prendre contact avec notre agence (Teddy MELES : 06-17-56-83-36) pour obtenir de plus amples informations sur cette maison, sur les démarches à suivre et sur les modalités de vente. Maisons France Confort Magny-le-Hongre est là pour vous accompagner à toutes les étapes de l'achat.
Annonce proposée par un Agent Commercial Partenaire.
Mentions légales
Terrain proposé par un partenaire foncier selon disponibilités et autorisation de publicité au prix de 170 000 €. Hors droit d'enregistrement et frais de notaire. Terrain + Maison proposés au prix de 380 000 € (Hors branchements et raccordements, papiers peints, peintures, revêtement de sol dans les chambres. Tarif modifiable sans préavis). Etiquette énergie : A. Différents modèles disponibles pour ce terrain. Assurances et garanties du constructeur (RC professionnelle, décennale, dommage ouvrage, garantie de remboursement de l'acompte, livraison à prix et délai convenu) : https://www.maisons-france-confort.fr/mentions-legales/. HEXAOM Services est enregistré auprès de l'ORIAS en tant que Courtier en financement, Niveau 1, sous le numéro 14001345.Agence Maisons France Confort de Magny-le-Hongre (77700)
- Téléphone :
- 01 84 80 92 96
- Adressse :
- 11 rue de Courtalin
77700 Magny-le-Hongre, France
