Maison neuve à
Villeparisis (77270) Référence : TM2433250_2

Prix du projet : Maison avec Terrain

prix 380 000 €

  • 5 pièces
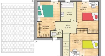
  • 3 chambres
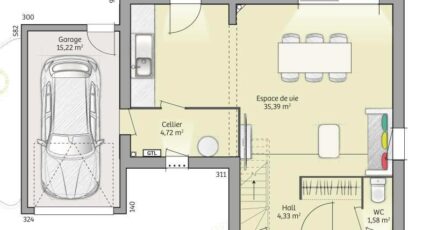
  • Surface maison 90 m2

Villeparisis : maison de 5 pièces (90 m²) à vendre
MAISON 5 PIÈCES NEUVE
À proximité du RER B (station Villeparisis-Mitry-le-Neuf, 30 min de Paris), venez découvrir cette maison de 5 pièces de 90 m² et de 250 m² de terrain à Villeparisis (77270). Elle est composée de trois chambres, d'une cuisine et d'une salle de bains.
Cette maison possède 2 niveaux. Elle est neuve.
Il y a plusieurs écoles (maternelle, élémentaire, primaire et collège) à moins de 10 minutes à pied. Niveau transports, on trouve les lignes B et E du RER ainsi que 26 gares à moins de 10 minutes en voiture. Il y a un bassin de natation, une bibliothèque, un tennis, des commerces, quatre boulangeries, une supérette, une boucherie-charcuterie et trois épiceries dans les environs. Enfin, le marché Rue de Gaulle anime les environs.
Elle est à vendre pour la somme de 380 000 €.
Contactez notre agence (Teddy MELES : 06-17-56-83-36) pour toute question sur cette maison. Concrétisez vos projets immobiliers avec Maisons France Confort Magny-le-Hongre.

Annonce proposée par un Agent Commercial Partenaire.

Mentions légales

Terrain proposé par un partenaire foncier selon disponibilités et autorisation de publicité au prix de 170 000 €. Hors droit d'enregistrement et frais de notaire. Terrain + Maison proposés au prix de 380 000 € (Hors branchements et raccordements, papiers peints, peintures, revêtement de sol dans les chambres. Tarif modifiable sans préavis). Etiquette énergie : A. Différents modèles disponibles pour ce terrain. Assurances et garanties du constructeur (RC professionnelle, décennale, dommage ouvrage, garantie de remboursement de l'acompte, livraison à prix et délai convenu) : https://www.maisons-france-confort.fr/mentions-legales/. HEXAOM Services est enregistré auprès de l'ORIAS en tant que Courtier en financement, Niveau 1, sous le numéro 14001345.

Contactez l'agence de Magny-le-Hongre

01 84 80 92 96

    * Champs obligatoires

    Vos informations sont traitées par HEXAOM et transmises à un conseiller commercial qui vous contactera afin de répondre à votre demande. Les plans et images présentés sur notre site sont la propriété d’HEXAOM et ne peuvent pas être reproduits sans son accord. Pour retrouver notre politique de protection des données personnelles et exercer vos droits conformément à la « loi informatique et liberté » cliquez-ici.