Maison neuve à
Villeparisis (77270) Référence : TM2439662_5

Prix du projet : Maison avec Terrain

prix 450 000 €

  • 5 pièces
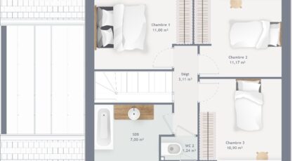
  • 3 chambres
  • Surface maison 90 m2

VENTE : maison F5 (90 m²) à Villeparisis
MAISON 5 PIÈCES NEUVE
À côté du RER B (station Villeparisis-Mitry-le-Neuf, 30 min de Paris), nous vous présentons à vendre à Villeparisis (77270), cette maison de 5 pièces de 90 m².
C'est une maison de 2 niveaux. Elle offre trois chambres, une cuisine et une salle de bains. La maison est neuve.
Le terrain du bien est de 400 m².
Plusieurs écoles (maternelle, élémentaire, primaire et collège) sont implantées à moins de 10 minutes à pied. Niveau transports en commun, il y a deux lignes de RER (B et E) ainsi que 26 gares à moins de 10 minutes en voiture. On trouve un bassin de natation, une bibliothèque, un tennis, des commerces, quatre boulangeries, trois épiceries, une supérette et une boucherie-charcuterie à quelques minutes à peine. Enfin, le marché Rue de Gaulle anime le quartier.
Son prix de vente est de 450 000 €.
Prenez contact avec notre agence (Teddy MELES : 06-17-56-83-36) pour tout renseignement sur la maison ou sur les démarches à suivre. Maisons France Confort Magny-le-Hongre vous accompagne dans tous vos projets immobiliers et dans toutes vos démarches.

Annonce proposée par un Agent Commercial Partenaire.

Mentions légales

Terrain proposé par un partenaire foncier selon disponibilités et autorisation de publicité au prix de 240 000 €. Hors droit d'enregistrement et frais de notaire. Terrain + Maison proposés au prix de 450 000 € (Hors branchements et raccordements, papiers peints, peintures, revêtement de sol dans les chambres. Tarif modifiable sans préavis). Etiquette énergie : A. Différents modèles disponibles pour ce terrain. Assurances et garanties du constructeur (RC professionnelle, décennale, dommage ouvrage, garantie de remboursement de l'acompte, livraison à prix et délai convenu) : https://www.maisons-france-confort.fr/mentions-legales/. HEXAOM Services est enregistré auprès de l'ORIAS en tant que Courtier en financement, Niveau 1, sous le numéro 14001345.

Contactez l'agence de Magny-le-Hongre

01 84 80 92 96

    * Champs obligatoires

    Vos informations sont traitées par HEXAOM et transmises à un conseiller commercial qui vous contactera afin de répondre à votre demande. Les plans et images présentés sur notre site sont la propriété d’HEXAOM et ne peuvent pas être reproduits sans son accord. Pour retrouver notre politique de protection des données personnelles et exercer vos droits conformément à la « loi informatique et liberté » cliquez-ici.