Maison neuve à
Villeparisis (77270) Référence : TM2472457_2

Prix du projet : Maison avec Terrain

prix 333 000 €

  • 5 pièces
  • 3 chambres
  • Surface maison 90 m2

Villeparisis : maison T5 (90 m²) en vente
QUARTIER RECHERCHÉ - MAISON 5 PIÈCES NEUVE
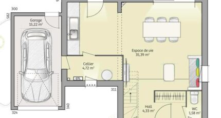
À vendre : à côté du RER B (station Villeparisis-Mitry-le-Neuf, 30 min de Paris), Maisons France Confort Magny-le-Hongre vous présente cette maison de 5 pièces de 90 m² et de 300 m² de terrain située dans un quartier prisé de Villeparisis (77270). Elle est composée de trois chambres, d'une cuisine et d'une salle de bains.
Il s'agit d'une maison de 2 niveaux. Elle est neuve.
La maison est située dans un secteur recherché. Plusieurs établissements scolaires (maternelle, élémentaire, primaire et collège) sont implantés à moins de 10 minutes à pied. Niveau transports en commun, on trouve les lignes de RER B et E ainsi que 26 gares à moins de 10 minutes en voiture. Il y a un bassin de natation, une bibliothèque, un tennis, des commerces, deux boucheries-charcuteries, deux épiceries et trois supérettes à quelques minutes. Enfin, le marché Rue de Gaulle anime les environs.
Elle est proposée à l'achat pour 333 000 €.
Prenez contact avec notre agence (MELES Teddy : 06-17-56-83-36) pour toute information sur la maison. Maisons France Confort Magny-le-Hongre est là pour vous accompagner dans tous vos projets immobiliers.

Annonce proposée par un Agent Commercial Partenaire.

Mentions légales

Terrain proposé par un partenaire foncier selon disponibilités et autorisation de publicité au prix de 160 000 €. Hors droit d'enregistrement et frais de notaire. Terrain + Maison proposés au prix de 333 000 € (Hors branchements et raccordements, papiers peints, peintures, revêtement de sol dans les chambres. Tarif modifiable sans préavis). Etiquette énergie : A. Différents modèles disponibles pour ce terrain. Assurances et garanties du constructeur (RC professionnelle, décennale, dommage ouvrage, garantie de remboursement de l'acompte, livraison à prix et délai convenu) : https://www.maisons-france-confort.fr/mentions-legales/. HEXAOM Services est enregistré auprès de l'ORIAS en tant que Courtier en financement, Niveau 1, sous le numéro 14001345.

Contactez l'agence de Magny-le-Hongre

01 84 80 92 96

    * Champs obligatoires

    Vos informations sont traitées par HEXAOM et transmises à un conseiller commercial qui vous contactera afin de répondre à votre demande. Les plans et images présentés sur notre site sont la propriété d’HEXAOM et ne peuvent pas être reproduits sans son accord. Pour retrouver notre politique de protection des données personnelles et exercer vos droits conformément à la « loi informatique et liberté » cliquez-ici.